Bedford, Bedfordshire
Viewing by Appointment only
Property Summary
- Last Modified - November 27, 2025
Features
Property Features
- Luxury 2 bed park bungalow
- Fully furnished
- Community living
- Over 50s
- Brand new home
- Fully fitted kitchen
- Immediate occupancy available
- Modern design
- Bus stop nearby
- Shops and amenities nearby
Rooms
Request More Details or Viewing
- Make Enquiry
Make Enquiry
Please complete the form below and a member of staff will be in touch shortly.
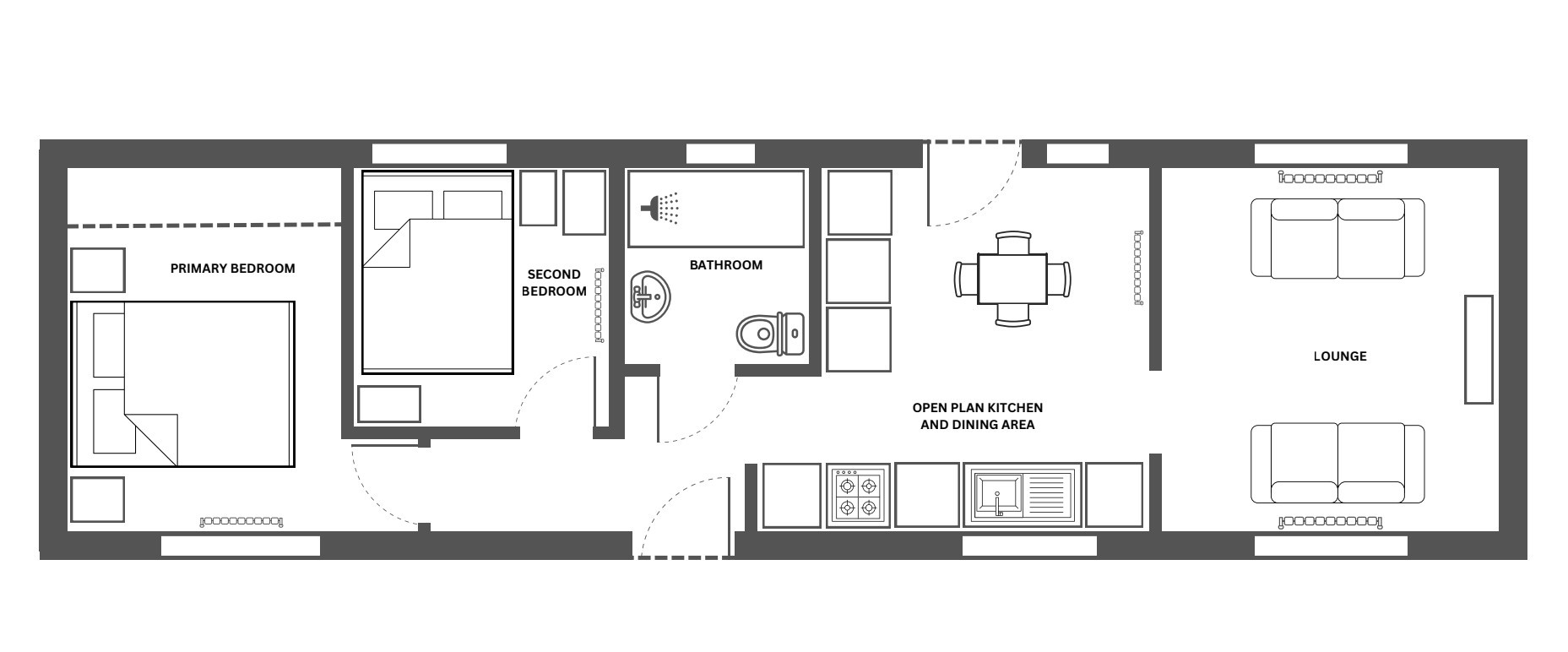
- Floorplan
- View Brochure
- Add To Shortlist
- Send To Friend
Send To Friend
Send details of Bedford, Bedfordshire to a friend by completing the information below.
Detailed Description
The Full Details
THE HOME
This brand new, modern-furnished Manor Lancaster (44'x12') luxury park home is perfect for those looking for a detached, easy to maintain, bungalow style property. The landscaped exterior boasts box large windows, garden area and a parking space. The home has a modern kitchen, comfortable living and dining room, two double bedrooms and a shower room.
THE PARK
This park is situated in a quiet woodland setting, close to beautiful countryside. The development is for 50+ and is ideal for semi retired and retired within a community of like minded people. This well established development also enjoys a licensed clubhouse. Conveniently, there is a bus service at the park entrance to Bedford (4 miles), Luton (14 miles) and Milton Keynes all with excellent shopping centres. Pets are considered (one cat).
THE AREA
This park is situated in the village of Wilstead offers lots of amenities, shops, post office, pubs, takeaways, doctors, chemist, etc. Within easy reach of the M1 and places of interest such as Woburn Abbey Safari Park, Whipsnade Zoo and the Shuttleworth Aircraft Museum.
HOUSE TO SELL?
Contact Quickmove for a free, no-obligation Part-Exchange valuation on this home. Enjoy a hassle-free move, with no estate agents’ fees or solicitors to pay. You even get to keep the keys to your existing property for 2 weeks after completion, so you can move out at your leisure.
Note: please note some images may depict a show home and may not be a 100% true representation of the property on-site. Specifications and layouts may differ and some photos may include optional extras.
Site fees (at time of listing): £275 per month
Please note that the site fee (also known as pitch fee, or ground rent) is subject to change and reviewed annually. Ground rent can only be increased in line with the Consumer Price Index. For more information, please get in touch.
Tenure: Virtual Freehold
Virtual Freehold means that when buying a park home, you purchase the physical property outright and lease the land it sits on in perpetuity, for the entirety of the time the home is sited. These properties are not mortgageable, if you are uncertain or would like further advice, please consult a solicitor.
Council Tax Band: A
NOTE: The information in this property listing is correct to the best of our knowledge. We recommend any potential purchaser is aware of all details including park rules and conditions before sale completion. We also recommend consulting the Mobile Homes Act 2013 for conditions of any future sale of this property.
SMGPARKREF-103
- Property ID: 4276
Shortlisted Properties
By clicking on the ‘Add To Shortlist’ button you can make a temporary shortlist which you can view below or by clicking here
Contact Quickmove Properties
Address
Quickmove Properties Ltd
11 Interface Business Park
Bincknoll Lane
Royal Wootton Bassett
Wiltshire, SN4 8SY
Call: 01793 840917
Email: info@quickmoveproperties.co.uk
Hours: Monday to Friday 9am to 5:30pm




