Wells, Somerset
Viewing by Appointment only
Property Summary
- Last Modified - January 8, 2026
Features
Property Features
- Part Exchange available
- Fully furnished
- Community living
- Pet friendly
- Residential development
- Two bedrooms
- Over 50s
- Exceptionally high specification
- Brand new home
- Modern design
Rooms
Request More Details or Viewing
- Make Enquiry
Make Enquiry
Please complete the form below and a member of staff will be in touch shortly.
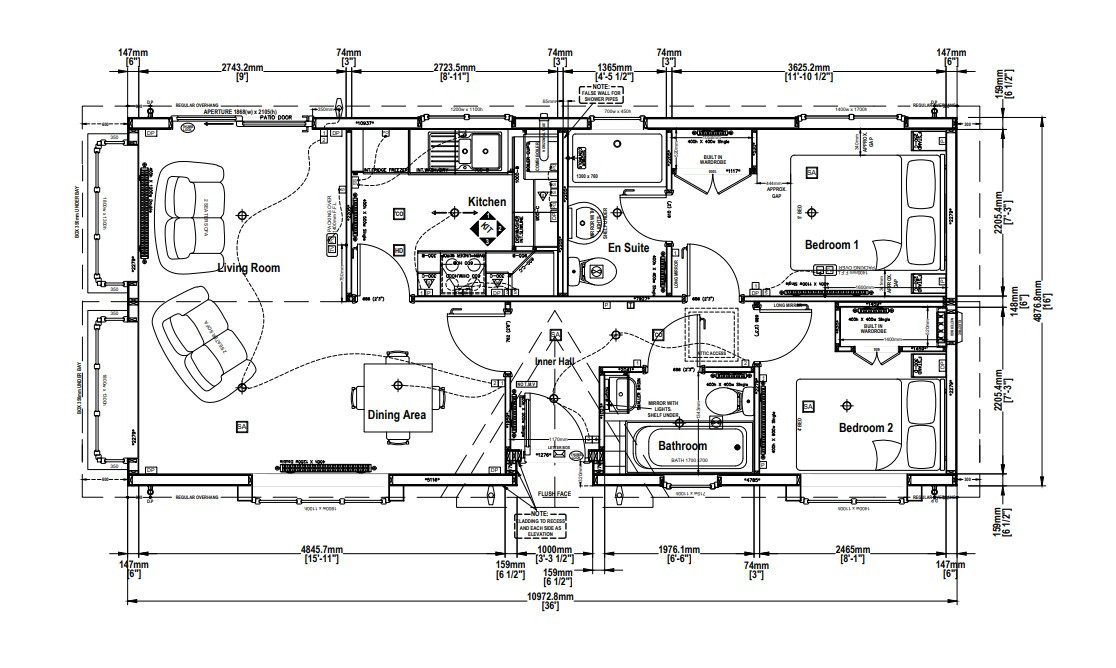
- Floorplan
- Add To Shortlist
- Send To Friend
Send To Friend
Send details of Wells, Somerset to a friend by completing the information below.
Detailed Description
The Full Details
THE HOME
This brand-new, modern-furnished Stately Badminton (36'x16') luxury park home is perfect for those looking for a detached, easy-to-maintain, bungalow-style property. The home has a modern and spacious kitchen with integrated appliances, a comfortable living room, two bedrooms, an en suite and a bathroom. All homes have their own parking space next to the home.
THE PARK
This established residential development is exclusive for the over 50s. The park is pet friendly and located in a small Somerset village. The park home lifestyle provides community living for like-minded people. The park is landscaped and private, to offer safe and secure living. Built in a countryside location, the park offers their residents the opportunity for an active lifestyle that is also suitable for pets.
THE AREA
The development is located in the small village of Wooky Hole, surrounded by stunning Somerset countryside. The park is close to the amenities of Wells, Glastonbury, Cheddar and Shepton Mallet with the coastal towns of Weston-Super-Mare, Burnham-On-Sea and Clevedon providing great days out.
There are many country walks from the park that ramblers can enjoy, with rugged footpaths and fantastic views from the top of the Mendip Hills to the lower flat ground of the Somerset levels. The surrounding area includes plenty of activities like Wooky Hole Caves, and dog friendly places to visit, including Cheddar Caves, Westonbirt Arboretum and many National Trust properties.
Local amenities
Waitrose: 1.6 mile
Tesco supermarket: 1.9 miles
Bus station: 1.9 miles
Medical centre: 2.3 miles
HOUSE TO SELL?
Contact Quickmove for a free, no-obligation Part-Exchange valuation on this home. Enjoy a hassle-free move, with no estate agents’ fees or solicitors to pay. You even get to keep the keys to your existing property for 2 weeks after completion, so you can move out at your leisure.
Please note: manufacturer’s stock show home images have been used and may not be a 100% true representation of the property on-site. Specifications and layouts may differ, and some photos may include optional extras.
Site fees (at time of listing): £210 per month
Please note that the site fee (also known as pitch fee, or ground rent) is subject to change and reviewed annually. Ground rent can only be increased in line with the Consumer Price Index. For more information, please get in touch.
Tenure: Virtual Freehold
Virtual Freehold means that when buying a park home, you purchase the physical property outright and lease the land it sits on in perpetuity, for the entirety of the time the home is sited. These properties are not mortgageable, if you are uncertain or would like further advice, please consult a solicitor.
NOTE: The information in this property listing is correct to the best of our knowledge. We recommend any potential purchaser is aware of all details including park rules and conditions before sale completion. We also recommend consulting the Mobile Homes Act 2013 for conditions of any future sale of this property.
- Property ID: 4335
Shortlisted Properties
By clicking on the ‘Add To Shortlist’ button you can make a temporary shortlist which you can view below or by clicking here
Contact Quickmove Properties
Address
Quickmove Properties Ltd
11 Interface Business Park
Bincknoll Lane
Royal Wootton Bassett
Wiltshire, SN4 8SY
Call: 01793 840917
Email: info@quickmoveproperties.co.uk
Hours: Monday to Friday 9am to 5:30pm




