Welshpool, Wales
Viewing by Appointment only
Property Summary
- Last Modified - November 27, 2025
Features
Property Features
- Part Exchange available
- Pet friendly
- Countryside views
- Residential development
- Two bedrooms
- Over 50s
- Garden space
- Utility room
- Private
- gated development
- Pre-owned park home
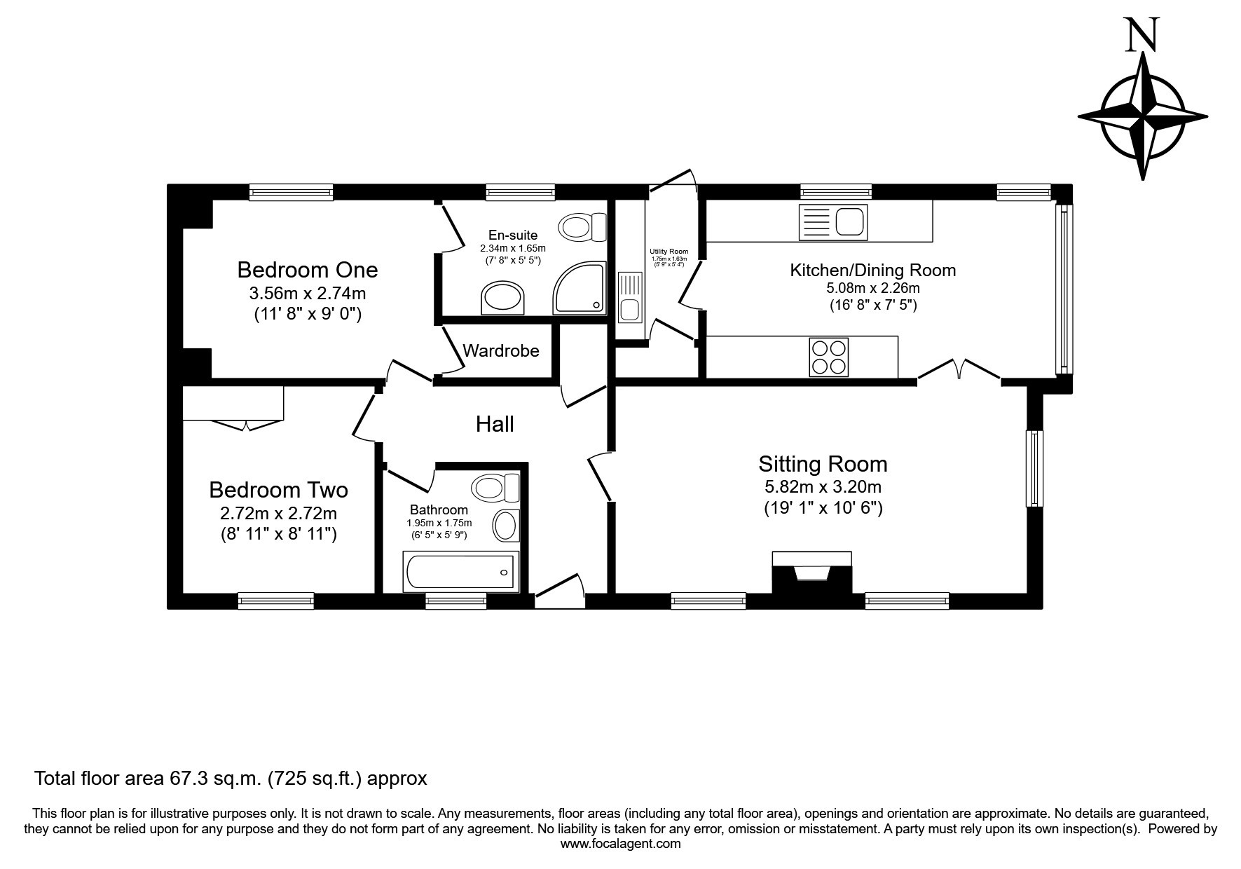
Rooms
Request More Details or Viewing
- Make Enquiry
Make Enquiry
Please complete the form below and a member of staff will be in touch shortly.
- Floorplan
- View Brochure
- Add To Shortlist
- Send To Friend
Send To Friend
Send details of Welshpool, Wales to a friend by completing the information below.
Detailed Description
The Full Details
THE HOME
This pre-owned, modern Stately Albion Goodwood (40'x20') luxury park home is perfect for those looking for a detached, easy-to-maintain, bungalow-style property. The home has a modern kitchen, comfortable living room, two double bedrooms, the master has an en suite and a walk in wardrobe, and a family bathroom. The landscaped exterior boasts a large, easy to maintain garden and driveway for 2 cars.
THE PARK
This residential park, exclusive for the over 50s, is set in beautiful countryside on the border of Shropshire and Powys. The park is pet friendly and has brand new homes available to purchase. The park home lifestyle provides friendly communities for like-minded people. Residential parks are often landscaped and private, creating a peaceful and tranquil environment. As they are often built in countryside locations, residential parks provide the opportunity for an active lifestyle, with dog walking routes often nearby.
THE AREA
The town of Welshpool is just 3 miles from the park, and Shrewsbury and Wrexham are just a short drive away. The banks of the River Severn are a quarter of a mile from the park with idyllic walks in the surrounding countryside.
Local amenities
- Doctors: 3 Miles
- Hospital: 5 Miles
- Bus stop: 50 Yards
- Railway Station: 4 Miles
- Post Office: 2.5 Miles
- Shop: 1 Mile
- Supermarkets: 4.5 Miles
HOUSE TO SELL?
Contact Quickmove for a free, no-obligation Part-Exchange valuation on this home. Enjoy a hassle-free move, with no estate agents’ fees or solicitors to pay. You even get to keep the keys to your existing property for 2 weeks after completion, so you can move out at your leisure.
Site fees (at time of listing): £220.38 per month
Please note that the site fee (also known as pitch fee, or ground rent) is subject to change and reviewed annually. Ground rent can only be increased in line with the Consumer Price Index. For more information, please get in touch.
Tenure: Virtual Freehold
Virtual Freehold means that when buying a park home, you purchase the physical property outright and lease the land it sits on in perpetuity, for the entirety of the time the home is sited. These properties are not mortgageable, if you are uncertain or would like further advice, please consult a solicitor.
Council Tax Band: A
NOTE: The information in this property listing is correct to the best of our knowledge. We recommend any potential purchaser is aware of all details including park rules and conditions before sale completion. We also recommend consulting the Mobile Homes Act 2013 for conditions of any future sale of this property.
SMGPARKREF-7236
- Property ID: 4249
Shortlisted Properties
By clicking on the ‘Add To Shortlist’ button you can make a temporary shortlist which you can view below or by clicking here
Contact Quickmove Properties
Address
Quickmove Properties Ltd
11 Interface Business Park
Bincknoll Lane
Royal Wootton Bassett
Wiltshire, SN4 8SY
Call: 01793 840917
Email: info@quickmoveproperties.co.uk
Hours: Monday to Friday 9am to 5:30pm




