Almondsbury, Bristol
Viewing by Appointment only
Property Summary
- Last Modified - February 11, 2026
Features
Property Features
- Part Exchange available
- Luxury 2 bed park bungalow
- Community living
- Over 50s
- Parking space
- Brand new home
- Fully fitted kitchen
- Outstanding location
- Residential park
- Established park
Rooms
Request More Details or Viewing
- Make Enquiry
Make Enquiry
Please complete the form below and a member of staff will be in touch shortly.
- Floorplan
- View Brochure
- Add To Shortlist
- Send To Friend
Send To Friend
Send details of Almondsbury, Bristol to a friend by completing the information below.
Detailed Description
The Full Details
Residential Park of the Year 2024 winner!
THE HOME
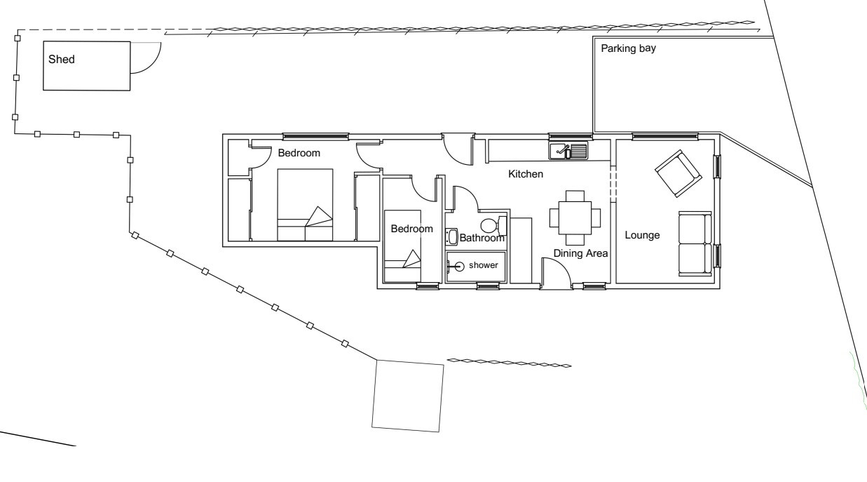
This brand new, modern Manor Lancaster (45'x14') park home is perfect for those looking for a detached, easy to maintain, bungalow-style retirement property. The homes has a modern kitchen with integrated appliances, comfortable living room with a fireplace, two bedrooms and a bathroom. The home has a garden space with shed.
- Mains gas charged by supplier
- Mains electric charged by supplier
- Water/sewerage payable to park
THE PARK
This is a well established park for the over 50s. This park has a lovely place for entertaining and socializing, which is run by the residents for the residents. This space is opens daily for bingo, coffee mornings, line dancing. Just a short drive from this park is Cribbs Causeway, the major shopping area which boasts all the major retail outlets plus a large entertainment complex the whole of which is within a short car/bus ride.
THE AREA
This park has excellent amenities close by, including a medical centre and good shopping facilities. A mobile library visits the park regularly. There is easy access to the M4 and M5 motorways and frequent buses run from the park to Bristol. Bristol itself has superb shopping and entertainment centres and many places of historical interest to visit, such as Cabot's Tower, the SS Great Britain and the world famous Clifton Suspension Bridge.
HOUSE TO SELL?
Contact Quickmove for a free, no-obligation Part-Exchange valuation on this home. Enjoy a hassle-free move, with no estate agents’ fees or solicitors to pay. You even get to keep the keys to your existing property for 2 weeks after completion, so you can move out at your leisure.
Site fees (at time of listing): £224 per month
Please note that the site fee (also known as pitch fee, or ground rent) is subject to change and reviewed annually. Ground rent can only be increased in line with the Consumer Price Index. For more information, please get in touch.
Tenure: Virtual Freehold
Virtual Freehold means that when buying a park home, you purchase the physical property outright and lease the land it sits on in perpetuity, for the entirety of the time the home is sited. These properties are not mortgageable, if you are uncertain or would like further advice, please consult a solicitor.
Council Tax Band: A
NOTE: The information in this property listing is correct to the best of our knowledge. We recommend any potential purchaser is aware of all details including park rules and conditions before sale completion. We also recommend consulting the Mobile Homes Act 2013 for conditions of any future sale of this property.
- Property ID: 4232
Shortlisted Properties
By clicking on the ‘Add To Shortlist’ button you can make a temporary shortlist which you can view below or by clicking here
Contact Quickmove Properties
Address
Quickmove Properties Ltd
11 Interface Business Park
Bincknoll Lane
Royal Wootton Bassett
Wiltshire, SN4 8SY
Call: 01793 840917
Email: info@quickmoveproperties.co.uk
Hours: Monday to Friday 9am to 5:30pm




