Barnet, Hertfordshire
Viewing by Appointment only
Property Summary
- Last Modified - November 21, 2025
Features
Property Features
- Community living
- Residential development
- One bedroom
- Garden space
- Private
- gated development
- Pre-owned park home
- Property is vacant
- Unfurnished
- Established park
- Over 45s
Rooms
Request More Details or Viewing
- Make Enquiry
Make Enquiry
Please complete the form below and a member of staff will be in touch shortly.
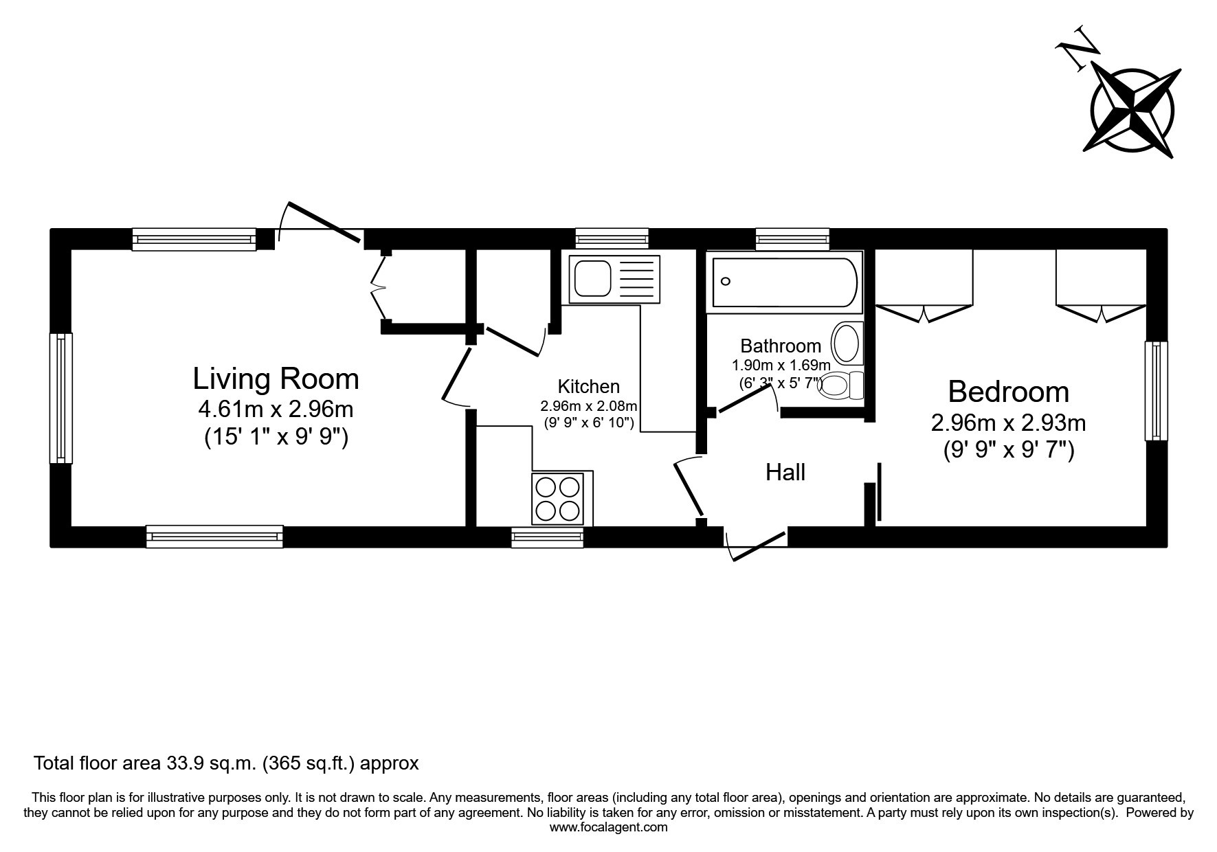
- Floorplan
- View Brochure
- Virtual Tour
- Add To Shortlist
- Send To Friend
Send To Friend
Send details of Barnet, Hertfordshire to a friend by completing the information below.
Detailed Description
The Full Details
THE HOME
This pre-owned (36'x10') park home is perfect for those looking for a detached, easy-to-maintain, bungalow-style property. The home is vacant and unfurnished, with a living room, kitchen, one double bedroom with fitted wardrobes and a bathroom.
THE PARK
This established development is exclusive for those over 45s. The park home lifestyle provides community living for like-minded people. The park is landscaped and private, to offer safe and secure living. Built in a countryside location, the park offers their residents the opportunity for an active lifestyle .
THE AREA
The development is located in North London, near Barnet, Borehamwood and Watford. Residents can easily access central London with excellent public transport link, with a bus stop outside the park and a train station a short drive away. Borehamwood is the nearest town with al high street amenities within a few miles of the park.
HOUSE TO SELL?
Contact Quickmove for a free, no-obligation Part-Exchange valuation on this home. Enjoy a hassle-free move, with no estate agents’ fees or solicitors to pay. You even get to keep the keys to your existing property for 2 weeks after completion, so you can move out at your leisure.
Site fees (at time of listing): £825.63 per quarter
Please note that the site fee (also known as pitch fee, or ground rent) is subject to change and reviewed annually. Ground rent can only be increased in line with the Consumer Price Index. For more information, please get in touch.
Tenure: Virtual Freehold
Virtual Freehold means that when buying a park home, you purchase the physical property outright and lease the land it sits on in perpetuity, for the entirety of the time the home is sited. These properties are not mortgageable, if you are uncertain or would like further advice, please consult a solicitor.
Council Tax Band: A
NOTE: The information in this property listing is correct to the best of our knowledge. We recommend any potential purchaser is aware of all details including park rules and conditions before sale completion. We also recommend consulting the Mobile Homes Act 2013 for conditions of any future sale of this property.
SMGPARKREF-16
- Property ID: 4245
Shortlisted Properties
By clicking on the ‘Add To Shortlist’ button you can make a temporary shortlist which you can view below or by clicking here
Contact Quickmove Properties
Address
Quickmove Properties Ltd
11 Interface Business Park
Bincknoll Lane
Royal Wootton Bassett
Wiltshire, SN4 8SY
Call: 01793 840917
Email: info@quickmoveproperties.co.uk
Hours: Monday to Friday 9am to 5:30pm




