Bury St. Edmunds, Suffolk
Viewing by Appointment only
Property Summary
- Last Modified - November 27, 2025
Features
Property Features
- Part Exchange available
- Fully furnished
- Community living
- Pet friendly
- Over 50s
- Brand new home
- Coming soon
- Residential park home
- Shops and amenities nearby
- Established park
Rooms
Request More Details or Viewing
- Make Enquiry
Make Enquiry
Please complete the form below and a member of staff will be in touch shortly.
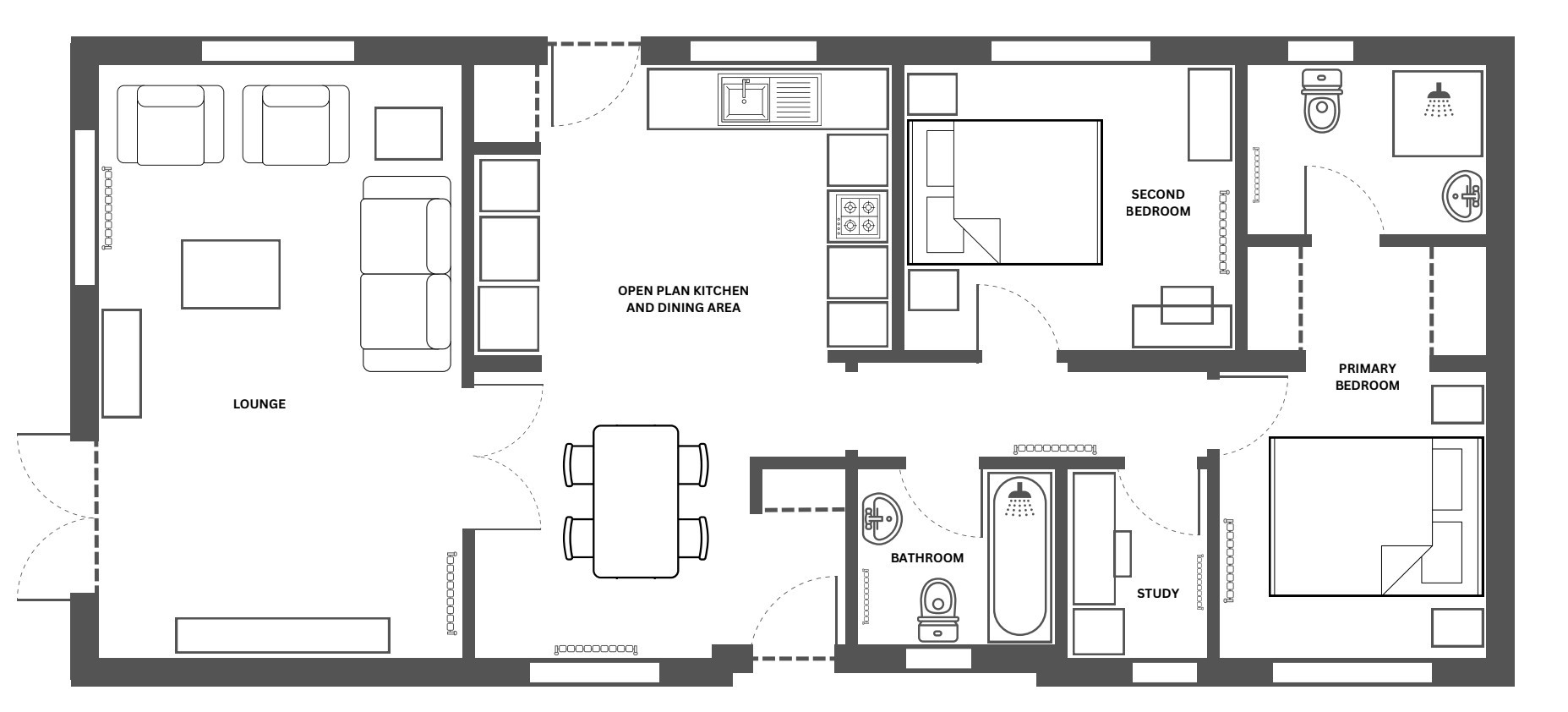
- Floorplan
- View Brochure
- Add To Shortlist
- Send To Friend
Send To Friend
Send details of Bury St. Edmunds, Suffolk to a friend by completing the information below.
Detailed Description
The Full Details
THE HOME
This brand new, modern-furnished Pathfinder luxury park home is perfect for those looking for a detached, easy to maintain, bungalow style property. The home features a spacious kitchen and a separate living/dining area, two bedrooms and two bathrooms. The lounge features a fireplace, TV point and French doors, the fitted kitchen includes a built in oven, hob and integrated appliances.
THE PARK
This quiet over 50's residential park is situated in a superb woodland setting in the heart of East Anglia, 1 mile from the village of Stanton.
A regular bus service goes from the park to the surrounding villages and towns. Milk and newspapers are delivered to the park. A Mobile Library and Hairdresser call regularly. Pets are considered, one dog or one cat. All new homes sited are fully furnished and have tiled roofs, mains gas central heating and double glazing.
This beautiful bungalow park, which provides a pleasant and welcoming community lifestyle, is a great location for individuals seeking a quiet escape or a slower pace of life. This park has all you need for a wonderful lifestyle, thanks to its fantastic location and luxury detached show homes.
THE AREA
The village of Stanton provides good shopping facilities, together with sports and social clubs. The historic market town of Bury St. Edmunds is famous for its Cathedral, Abbey Ruins and Floral Gardens. Whilst steeped in history, it has a modern shopping centre, theatre sports and leisure activities. The park is uniquely situated to enjoy the glories of the East Anglian scene, including Constable country, the Norfolk Broads and the local heathlands.
HOUSE TO SELL?
Hassle-free Property Part-Exchange is available from recommended part-exchange specialists Quickmove Properties, with no estate agent fees, no solicitor's fees and no market uncertainty.
Site fees (at time of listing): £230 per month
Please note that the site fee (also known as pitch fee, or ground rent) is subject to change and reviewed annually. Ground rent can only be increased in line with the Consumer Price Index. For more information, please get in touch.
Tenure: Virtual Freehold
Virtual Freehold means that when buying a park home, you purchase the physical property outright and lease the land it sits on in perpetuity, for the entirety of the time the home is sited. These properties are not mortgageable. Please consult a solicitor for further information.
Council Tax Band: A
NOTE: The information in this property listing is correct to the best of our knowledge. We recommend any potential purchaser is aware of all details including park rules and conditions before sale completion. We also recommend consulting the Mobile Homes Act 2013 for conditions of any future sale of this property.
Please note: manufacturer's 'stock' show home image has been used and may not be a 100% true representation of the property on-site. Specifications and layouts may differ and some photos may include optional extras.
- Property ID: 4278
Shortlisted Properties
By clicking on the ‘Add To Shortlist’ button you can make a temporary shortlist which you can view below or by clicking here
Contact Quickmove Properties
Address
Quickmove Properties Ltd
11 Interface Business Park
Bincknoll Lane
Royal Wootton Bassett
Wiltshire, SN4 8SY
Call: 01793 840917
Email: info@quickmoveproperties.co.uk
Hours: Monday to Friday 9am to 5:30pm




