Cheltenham, Gloucestershire
Viewing by Appointment only
Property Summary
- Last Modified - February 25, 2026
Features
Property Features
- Part Exchange available
- Community living
- Pet friendly
- Residential development
- Two bedrooms
- Brand new home
- Modern design
- Over 45s
Rooms
Request More Details or Viewing
- Make Enquiry
Make Enquiry
Please complete the form below and a member of staff will be in touch shortly.
- Floorplan
- View Brochure
- Add To Shortlist
- Send To Friend
Send To Friend
Send details of Cheltenham, Gloucestershire to a friend by completing the information below.
Detailed Description
The Full Details
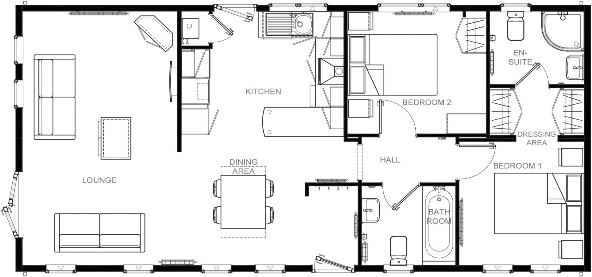
THE HOME
This brand-new, modern-furnished Omar Newmarket (37'x22') luxury park home is perfect for those looking for a detached, easy-to-maintain, bungalow-style property. The home has a spacious kitchen with integrated appliances, dining area and comfortable living room and two bedrooms and two bathrooms.
THE PARK
This small residential development is exclusive for the over 45s and pet friendly. The park home lifestyle provides community living for like-minded people. The park is landscaped and private, to offer safe and secure living. Built in a countryside location, the park offers their residents the opportunity for an active lifestyle that is also suitable for pets.
THE AREA
Located on the edge of Cheltenham, this development is well located with amenities nearby. The centre of Cheltenham is just 3 miles away, with high street shopping and restaurants. Cheltenham has great transport links to the Cotswolds and the wider area of the South West.
Local amenities
Bus stop: 0.2 miles
Aldi: 0.3 miles
Saindsburys: 0.5 miles
Doctors surgery: 1.6
Train station: 2.1 miles
HOUSE TO SELL?
Contact Quickmove for a free, no-obligation Part-Exchange valuation on this home. Enjoy a hassle-free move, with no estate agents’ fees or solicitors to pay. You even get to keep the keys to your existing property for 2 weeks after completion, so you can move out at your leisure.
Please note: manufacturer’s stock show home images have been used and may not be a 100% true representation of the property on-site. Specifications and layouts may differ, and some photos may include optional extras.
Site fees (at time of listing): £220 per month
Please note that the site fee (also known as pitch fee, or ground rent) is subject to change and reviewed annually. Ground rent can only be increased in line with the Consumer Price Index. For more information, please get in touch.
Tenure: Virtual Freehold
Virtual Freehold means that when buying a park home, you purchase the physical property outright and lease the land it sits on in perpetuity, for the entirety of the time the home is sited. These properties are not mortgageable, if you are uncertain or would like further advice, please consult a solicitor.
Council Tax Band: A
NOTE: The information in this property listing is correct to the best of our knowledge. We recommend any potential purchaser is aware of all details including park rules and conditions before sale completion. We also recommend consulting the Mobile Homes Act 2013 for conditions of any future sale of this property.
- Property ID: 4261
Shortlisted Properties
By clicking on the ‘Add To Shortlist’ button you can make a temporary shortlist which you can view below or by clicking here
Contact Quickmove Properties
Address
Quickmove Properties Ltd
11 Interface Business Park
Bincknoll Lane
Royal Wootton Bassett
Wiltshire, SN4 8SY
Call: 01793 840917
Email: info@quickmoveproperties.co.uk
Hours: Monday to Friday 9am to 5:30pm




