Cheltenham, Gloucestershire
Viewing by Appointment only
Property Summary
- Last Modified - February 25, 2026
Features
Property Features
- Community living
- Pet friendly
- Garden shed
- Residential development
- Two bedrooms
- Garden space
- Property is vacant
- Unfurnished
- Established park
- Over 45s
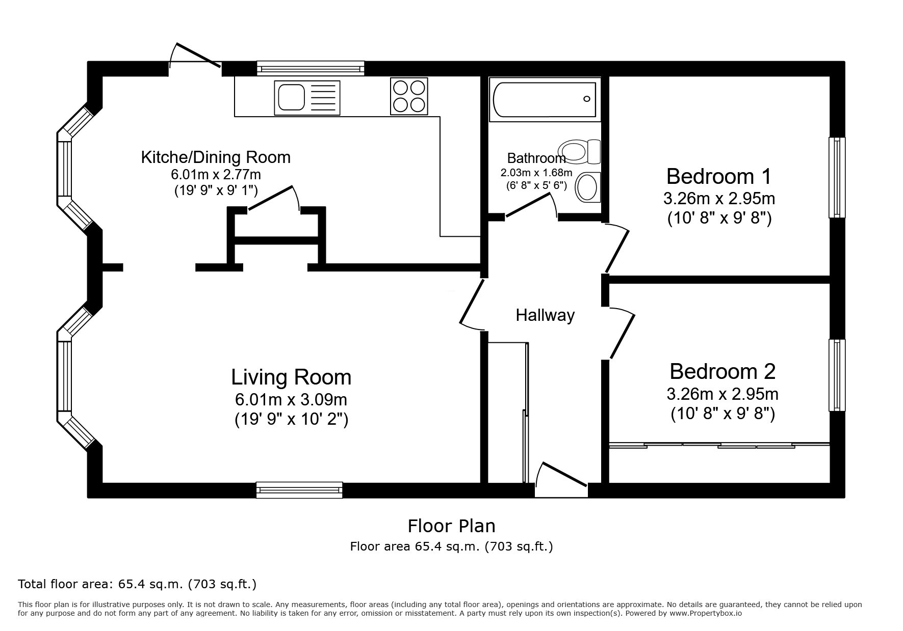
Rooms
Request More Details or Viewing
- Make Enquiry
Make Enquiry
Please complete the form below and a member of staff will be in touch shortly.
- Floorplan
- View Brochure
- Virtual Tour
- Add To Shortlist
- Send To Friend
Send To Friend
Send details of Cheltenham, Gloucestershire to a friend by completing the information below.
Detailed Description
The Full Details
THE HOME
This pre-owned, vacant Homeseeker Langdale (36'x20') park home is perfect for those looking for a detached, easy-to-maintain, bungalow-style property. The home is located in a private secluded leafy corner of the park. The home has a spacious living room with large windows, leading through to the dining area and kitchen which has plenty of cupboards and a pantry. The home has two bedrooms, both with built in storage, and a bathroom. The exterior includes a driveway and a large garden with two sheds. Gardens of this size rarely available with park homes.
THE PARK
This established residential development is exclusive for those over 45 and is pet friendly. The park home lifestyle provides community living for like-minded people. The park is landscaped and private, to offer safe and secure living. Built in a countryside location, the park offers their residents the opportunity for an active lifestyle that is also suitable for pets.
THE AREA
This development is located on the edge of Cheltenham and backs onto fields. Amenities including supermarkets and the train station are within a short drive from the park. Cheltenham town centre is a haven for high street shopping, historic architecture with the world famous Cheltenham Racecourse on the outskirts of the town.
Local amenities
Bus stop: 0.4 miles
ASDA Supermarket: 1.4 miles
Train station: 2.3 miles
Doctors surgery: 2.5 miles
HOUSE TO SELL?
Contact Quickmove for a free, no-obligation Part-Exchange valuation on this home. Enjoy a hassle-free move, with no estate agents’ fees or solicitors to pay. You even get to keep the keys to your existing property for 2 weeks after completion, so you can move out at your leisure.
Site fees (at time of listing): £182.67 per month
Please note that the site fee (also known as pitch fee, or ground rent) is subject to change and reviewed annually. Ground rent can only be increased in line with the Consumer Price Index. For more information, please get in touch.
Tenure: Virtual Freehold
Virtual Freehold means that when buying a park home, you purchase the physical property outright and lease the land it sits on in perpetuity, for the entirety of the time the home is sited. These properties are not mortgageable, if you are uncertain or would like further advice, please consult a solicitor.
Council Tax Band: A
NOTE: The information in this property listing is correct to the best of our knowledge. We recommend any potential purchaser is aware of all details including park rules and conditions before sale completion. We also recommend consulting the Mobile Homes Act 2013 for conditions of any future sale of this property.
- Property ID: 4328
Shortlisted Properties
By clicking on the ‘Add To Shortlist’ button you can make a temporary shortlist which you can view below or by clicking here
Contact Quickmove Properties
Address
Quickmove Properties Ltd
11 Interface Business Park
Bincknoll Lane
Royal Wootton Bassett
Wiltshire, SN4 8SY
Call: 01793 840917
Email: info@quickmoveproperties.co.uk
Hours: Monday to Friday 9am to 5:30pm




