Doncaster, South Yorkshire
Viewing by Appointment only
Property Summary
- Last Modified - February 25, 2026
Features
Property Features
- Part Exchange available
- Luxury 2 bed park bungalow
- Community living
- Garden shed
- Residential development
- Over 55's
- Immediate occupancy available
- Pre-owned park home
- Established park
Rooms
Request More Details or Viewing
- Make Enquiry
Make Enquiry
Please complete the form below and a member of staff will be in touch shortly.
- Floorplan
- View Brochure
- Add To Shortlist
- Send To Friend
Send To Friend
Send details of Doncaster, South Yorkshire to a friend by completing the information below.
Detailed Description
The Full Details
THE HOME
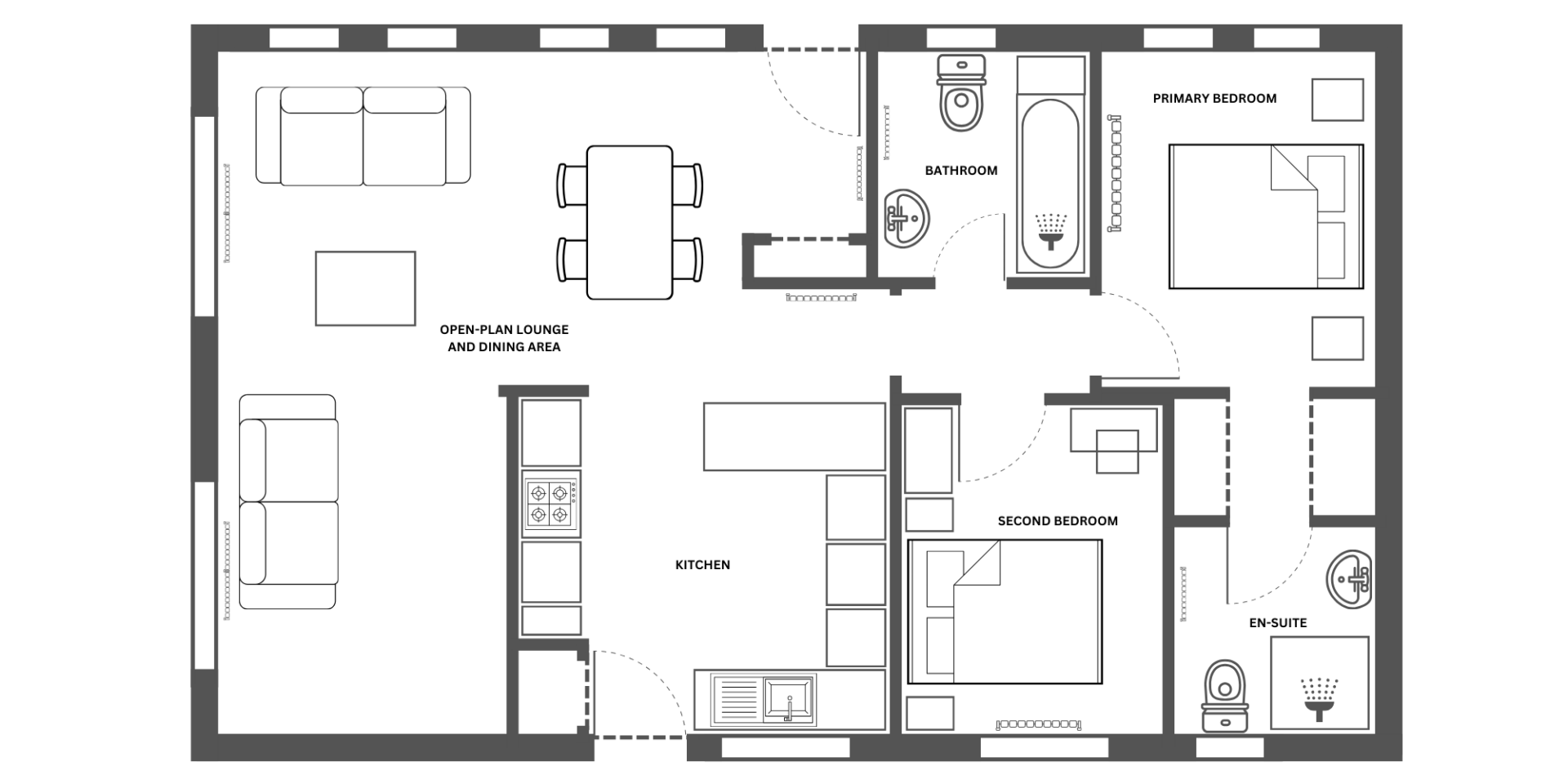
This brand new Omar Newmarket (40'x20') park home is perfect for those looking for a detached, easy to maintain, bungalow-style property. The home has a modern kitchen and dining room, living room, two double bedrooms, an en suite to the master and a family bathroom.
THE PARK
A beautiful, well planned urban retirement park for the over 55s, yet in a lovely tranquil environment surrounded by open recreational land. Offering community living with like minded people. Pets are also considered on the park (1 per home).
THE AREA
Good local bus services provide excellent access to the bustling market town centre of Thorne near Doncaster with its good local shops, pubs, etc. Sainsburys supermarket is just 10/15 minutes walk away or a few minutes by car. Two railway stations serve Thorne offering good access to the surrounding areas. The historic market town of Doncaster situated on the River Don is just 13 miles away, with several excellent shopping centres and other amenities it's great for a day out. Close to the M18 with excellent links to several other motorways, the park less than an hour's drive to Derbyshire's magnificent Peak District.
HOUSE TO SELL?
Contact Quickmove for a free, no-obligation Part-Exchange valuation on this home. Enjoy a hassle-free move, with no estate agents’ fees or solicitors to pay. You even get to keep the keys to your existing property for 2 weeks after completion, so you can move out at your leisure.
Please note: manufacturer’s stock show home images have been used and may not be a 100% true representation of the property on-site. Specifications and layouts may differ, and some photos may include optional extras.
Site fees (at time of listing): £178 per month
Please note that the site fee (also known as pitch fee, or ground rent) is subject to change and reviewed annually. Ground rent can only be increased in line with the Consumer Price Index. For more information, please get in touch.
Tenure: Virtual Freehold
Virtual Freehold means that when buying a park home, you purchase the physical property outright and lease the land it sits on in perpetuity, for the entirety of the time the home is sited. These properties are not mortgageable. Please consult a solicitor for further information.
Council Tax Band: A
NOTE: The information in this property listing is correct to the best of our knowledge. We recommend any potential purchaser is aware of all details including park rules and conditions before sale completion. We also recommend consulting the Mobile Homes Act 2013 for conditions of any future sale of this property.
- Property ID: 3252
Shortlisted Properties
By clicking on the ‘Add To Shortlist’ button you can make a temporary shortlist which you can view below or by clicking here
Contact Quickmove Properties
Address
Quickmove Properties Ltd
11 Interface Business Park
Bincknoll Lane
Royal Wootton Bassett
Wiltshire, SN4 8SY
Call: 01793 840917
Email: info@quickmoveproperties.co.uk
Hours: Monday to Friday 9am to 5:30pm




