Gunnislake, Cornwall
Viewing by Appointment only
Property Summary
- Last Modified - March 5, 2026
Features
Property Features
- Part Exchange available
- Fully furnished
- Pet friendly
- Residential development
- Two double bedrooms
- Over 50s
- Brand new home
- Countryside location
- Modern design
- Village facilities nearby
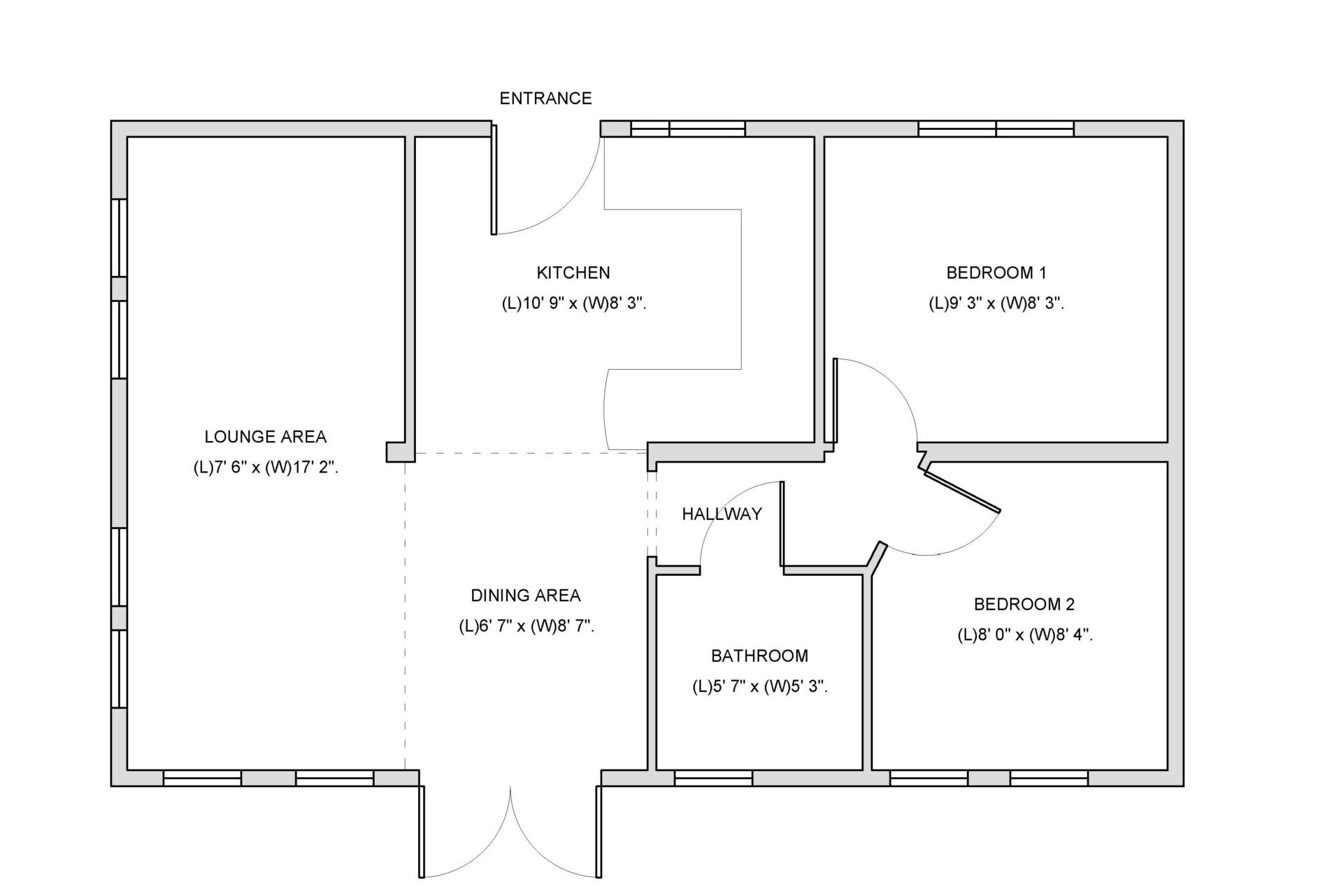
Rooms
Request More Details or Viewing
- Make Enquiry
Make Enquiry
Please complete the form below and a member of staff will be in touch shortly.
- Floorplan
- Add To Shortlist
- Send To Friend
Send To Friend
Send details of Gunnislake, Cornwall to a friend by completing the information below.
Detailed Description
The Full Details
THE HOME
This brand-new, modern-furnished Omar Newmarket (29'x18') luxury park home is perfect for those looking for a detached, easy-to-maintain, bungalow-style property. The home has a spacious kitchen with integrated appliances, dining area and living room. There are two double bedrooms and a bathroom. The home sits on an elevated plot with far reaching views of the surrounding countryside.
THE PARK
This home is located on an exclusive residential park set on the scenic edge of Gunnislake, offering a tranquil rural setting with panoramic views over the Tamar Valley and surrounding countryside. The homes are exclusive for those over 50 and their pets.
Life on the park is about peace, community and quality of life. Enjoy the relaxed pace of rural Cornwall while still being part of a warm, welcoming neighbourhood of like-minded homeowners. Tamar Park is ideal for those seeking a quieter pace without sacrificing convenience — local amenities, scenic walks and community activities are right on your doorstep.
The park’s location also means you can easily explore the wonderful natural beauty of the Tamar Valley Area of Outstanding Natural Beauty (AONB) and enjoy outdoor pursuits from gentle riverside strolls to more adventurous hikes.
THE AREA
Gunnislake is a charming village nestled in the heart of the Tamar Valley, rich in history and natural beauty. Residents of Tamar Park benefit from a peaceful rural lifestyle within easy reach of everyday essentials, local pubs, shops and amenities in Gunnislake and nearby towns like Tavistock and Callington. Excellent transport links connect you to Plymouth and beyond, making it a great balance between countryside tranquillity and accessibility. The wider area boasts attractions such as the Tamar Valley Donkey Park, historic Cotehele House and Gardens, and miles of scenic walking routes — perfect for weekend adventures or peaceful days out in nature.
Local amenities
- Gunnislake Town Centre: 2.9 miles
- Callington: 3.4 miles
- Tesco Superstore: 2.9 miles
- Plymouth: 17 miles
- Calstock: 3.8 miles
- Connections to Gunnislake Train Station: 2.4 miles
- St. Mellion Estate - Golf, Spa, Gym: 6.0 miles
HOUSE TO SELL?
Contact Quickmove for a free, no-obligation Part-Exchange valuation on this home. Enjoy a hassle-free move, with no estate agents’ fees or solicitors to pay. You even get to keep the keys to your existing property for 2 weeks after completion, so you can move out at your leisure.
Site fees (at time of listing): £253 per month
Please note that the site fee (also known as pitch fee, or ground rent) is subject to change and reviewed annually. Ground rent can only be increased in line with the Consumer Price Index. For more information, please get in touch.
Tenure: Virtual Freehold
Virtual Freehold means that when buying a park home, you purchase the physical property outright and lease the land it sits on in perpetuity, for the entirety of the time the home is sited. These properties are not mortgageable, if you are uncertain or would like further advice, please consult a solicitor.
Council Tax Band: A
NOTE: The information in this property listing is correct to the best of our knowledge. We recommend any potential purchaser is aware of all details including park rules and conditions before sale completion. We also recommend consulting the Mobile Homes Act 2013 for conditions of any future sale of this property.
- Property ID: 4406
Shortlisted Properties
By clicking on the ‘Add To Shortlist’ button you can make a temporary shortlist which you can view below or by clicking here
Contact Quickmove Properties
Address
Quickmove Properties Ltd
11 Interface Business Park
Bincknoll Lane
Royal Wootton Bassett
Wiltshire, SN4 8SY
Call: 01793 840917
Email: info@quickmoveproperties.co.uk
Hours: Monday to Friday 9am to 5:30pm




