Hailsham, Sussex
Viewing by Appointment only
Property Summary
- Last Modified - December 17, 2025
Features
Property Features
- Part Exchange available
- Community living
- Over 50s
- Exceptionally high specification
- Fully fitted kitchen
- Garden space
- Modern design
- Outstanding location
- Rural Location
- Residential park
Rooms
Request More Details or Viewing
- Make Enquiry
Make Enquiry
Please complete the form below and a member of staff will be in touch shortly.
- Floorplan
- View Brochure
- Add To Shortlist
- Send To Friend
Send To Friend
Send details of Hailsham, Sussex to a friend by completing the information below.
Detailed Description
The Full Details
THE HOME
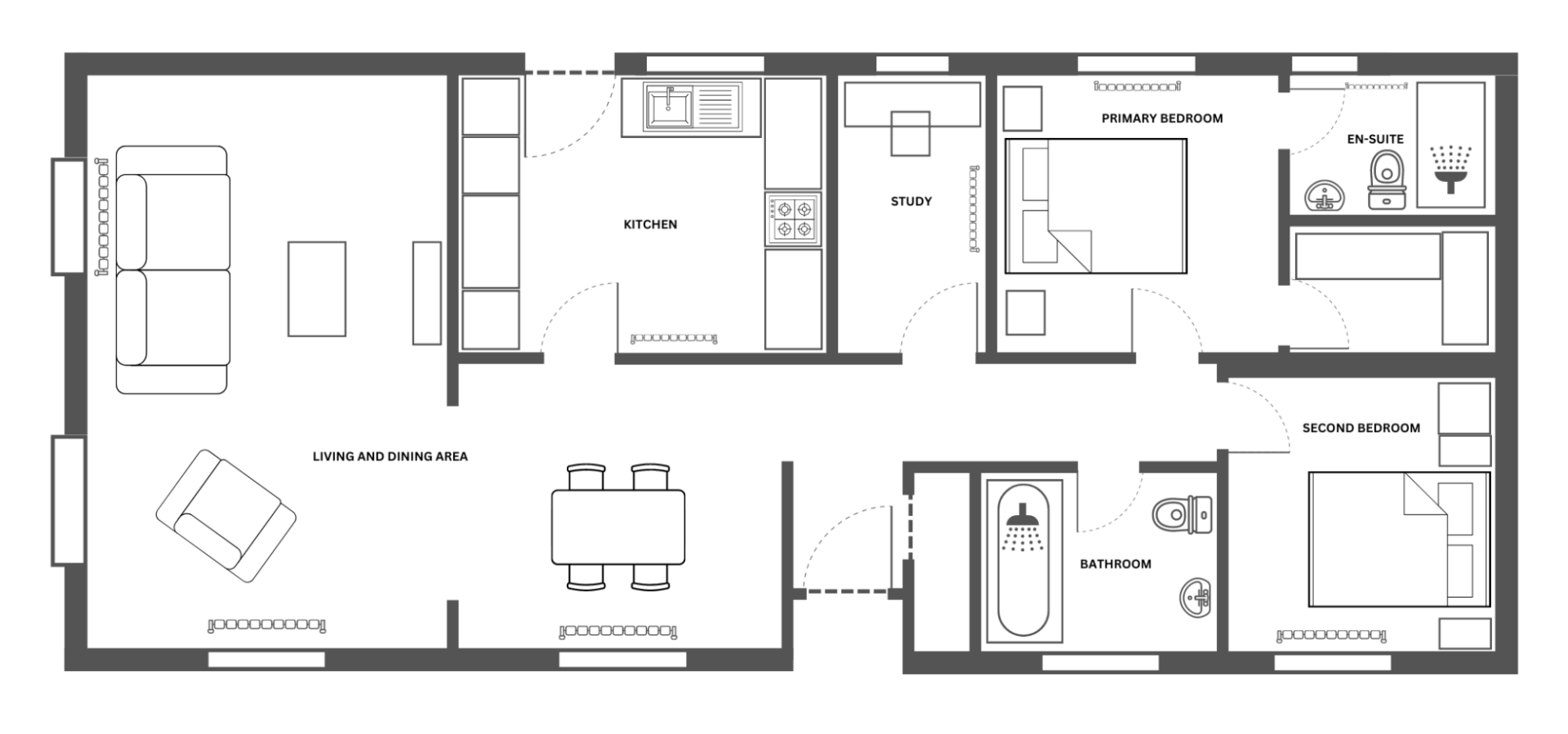
This brand new, modern-furnished Manor Arthingworth (48'x20') luxury park home is perfect for those looking for a detached, easy to maintain, bungalow-style property. The home features a modern kitchen and dining area, a comfortable living space, two double bedrooms and two bathrooms.
THE PARK
Beautifully laid out in a green setting, this residential park is the perfect place for retirement. The roads are well lit and the park is extremely safe and secure. On the Park there is a lively social life, centred on the Residents' Club plus Residents enjoy the many local amenities, including golf and good fishing. All the homes on the park are fully furnished, have tiled roofs, mains gas central heating and double glazing windows. The park is exclusive for the over 50s.
THE AREA
The town of Hailsham is approximately 1 mile away and has a bus service which comes to the centre of the Park. The town has a weekly Market, Supermarket, Leisure Complex and a Medical Centre. Eastbourne is approximately 8 miles away and is easily reached by car, or a bus service. It is a pleasant town with seafront and pier, bandstand, floral gardens, Sovereign Centre Leisure complex and theatres. Situated on the edge of the South Downs the Park is conveniently located for visiting Hastings, Brighton and Newhaven where the Cross Channel Ferry runs to Dieppe.
HOUSE TO SELL?
Contact Quickmove for a free, no-obligation Part-Exchange valuation on this home. Enjoy a hassle-free move, with no estate agents’ fees or solicitors to pay. You even get to keep the keys to your existing property for 2 weeks after completion, so you can move out at your leisure.
Please note: manufacturer’s stock show home images have been used and may not be a 100% true representation of the property on-site. Specifications and layouts may differ, and some photos may include optional extras.
Site fees (at time of listing): £267 per month
Please note that the site fee (also known as pitch fee, or ground rent) is subject to change and reviewed annually. Ground rent can only be increased in line with the Consumer Price Index. For more information, please get in touch.
Tenure: Virtual Freehold
Virtual Freehold means that when buying a park home, you purchase the physical property outright and lease the land it sits on in perpetuity, for the entirety of the time the home is sited. These properties are not mortgageable. Please consult a solicitor for further information.
Council Tax Band: A
NOTE: The information in this property listing is correct to the best of our knowledge. We recommend any potential purchaser is aware of all details including park rules and conditions before sale completion. We also recommend consulting the Mobile Homes Act 2013 for conditions of any future sale of this property.
- Property ID: 2291
Shortlisted Properties
By clicking on the ‘Add To Shortlist’ button you can make a temporary shortlist which you can view below or by clicking here
Contact Quickmove Properties
Address
Quickmove Properties Ltd
11 Interface Business Park
Bincknoll Lane
Royal Wootton Bassett
Wiltshire, SN4 8SY
Call: 01793 840917
Email: info@quickmoveproperties.co.uk
Hours: Monday to Friday 9am to 5:30pm




