Hartlepool, County Durham
Viewing by Appointment only
Property Summary
- Last Modified - December 20, 2025
Features
Property Features
- Part Exchange available
- Fully furnished
- Pet friendly
- Residential development
- Brand new home
- Private
- gated development
- Two parking spaces
- Town location
- Coastal Location
- Over 45s
Rooms
Request More Details or Viewing
- Make Enquiry
Make Enquiry
Please complete the form below and a member of staff will be in touch shortly.
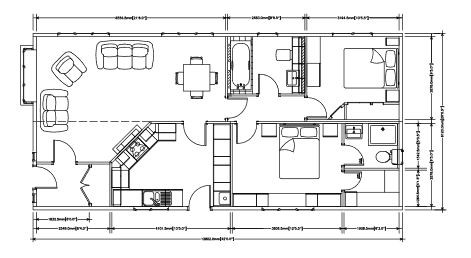
- Floorplan
- View Brochure
- Add To Shortlist
- Send To Friend
Send To Friend
Send details of Hartlepool, County Durham to a friend by completing the information below.
Detailed Description
The Full Details
THE HOME
This brand new, modern-furnished Stately Badminton (46'x22') luxury park home is perfect for those looking for a detached, easy to maintain, bungalow-style property. The home has a modern kitchen with integrated appliances, comfortable living room, two double bedrooms, an en suite and a bathroom.
THE PARK
This established residential development is located 500 yards from the beach. It is exclusive for the over 45s and pets are welcome. The development is gated with CCTV for extra security.
THE AREA
Located on the North East coast on the outskirts of thriving town of Hartlepool. It has all major supermarkets, pubs, restaurants, sports and leisure venues. Hartlepool also has the closest medical centre, dentist and pharmacy. The development is on a local bus route giving access to Sunderland and Durham. Durham is the closest city just 14 miles away with all major city amenities and facilities.
Local amenities
Bus stop: 0.3 miles
Medical centre: 2.7 miles
ALDI: 3 miles
Train station: 3 miles
HOUSE TO SELL?
Contact Quickmove for a free, no-obligation Part-Exchange valuation on this home. Enjoy a hassle-free move, with no estate agents’ fees or solicitors to pay. You even get to keep the keys to your existing property for 2 weeks after completion, so you can move out at your leisure.
Please note: manufacturer’s stock show home images have been used and may not be a 100% true representation of the property on-site. Specifications and layouts may differ, and some photos may include optional extras.
Site fees (at time of listing): £195 per month
Please note that the site fee (also known as pitch fee, or ground rent) is subject to change and reviewed annually. Ground rent can only be increased in line with the Consumer Price Index. For more information, please get in touch.
Tenure: Virtual Freehold
Virtual Freehold means that when buying a park home, you purchase the physical property outright and lease the land it sits on in perpetuity, for the entirety of the time the home is sited. These properties are not mortgageable. Please consult a solicitor for further information.
Council Tax Band: A
NOTE: The information in this property listing is correct to the best of our knowledge. We recommend any potential purchaser is aware of all details including park rules and conditions before sale completion. We also recommend consulting the Mobile Homes Act 2013 for conditions of any future sale of this property.
- Property ID: 3546
Shortlisted Properties
By clicking on the ‘Add To Shortlist’ button you can make a temporary shortlist which you can view below or by clicking here
Contact Quickmove Properties
Address
Quickmove Properties Ltd
11 Interface Business Park
Bincknoll Lane
Royal Wootton Bassett
Wiltshire, SN4 8SY
Call: 01793 840917
Email: info@quickmoveproperties.co.uk
Hours: Monday to Friday 9am to 5:30pm




