Hockley, Essex
Viewing by Appointment only
Property Summary
- Last Modified - February 3, 2026
Features
Property Features
- Part Exchange available
- Fully furnished
- Community living
- Pet friendly
- Residential development
- Two bedrooms
- Over 50s
- Exceptionally high specification
- Brand new home
- Modern design
Rooms
Request More Details or Viewing
- Make Enquiry
Make Enquiry
Please complete the form below and a member of staff will be in touch shortly.
- Floorplan
- View Brochure
- Add To Shortlist
- Send To Friend
Send To Friend
Send details of Hockley, Essex to a friend by completing the information below.
Detailed Description
The Full Details
THE HOME
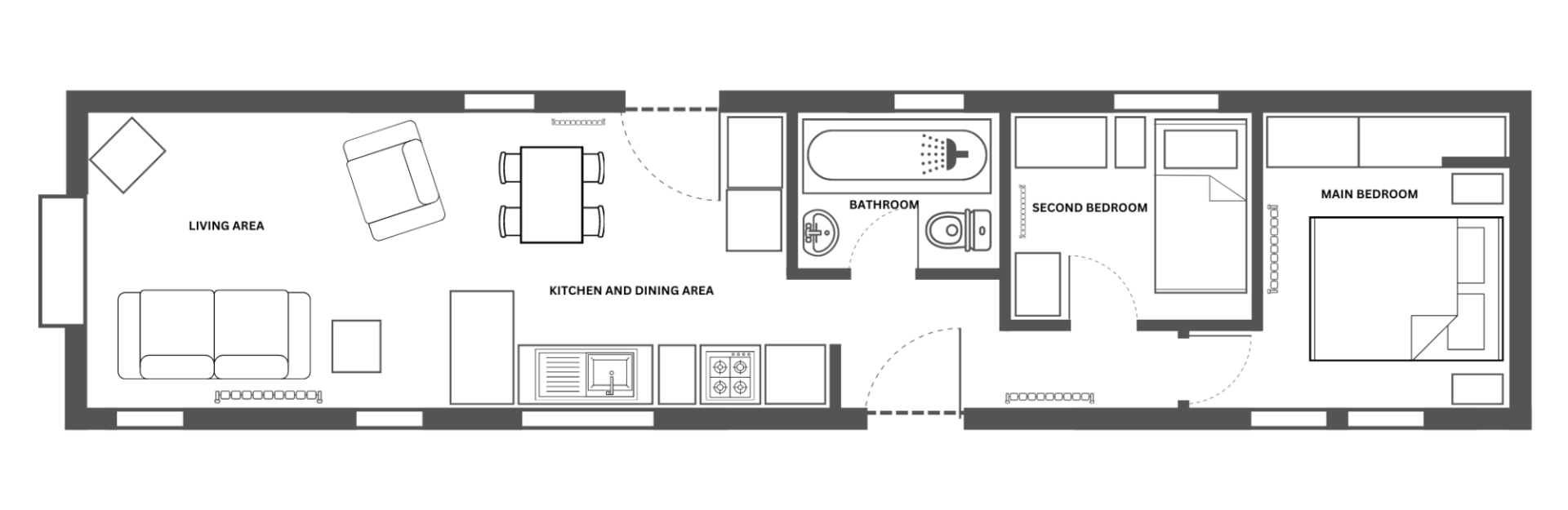
This brand new, modern-furnished Omar Newmarket (50'x10') luxury park home is perfect for those looking for a detached, easy to maintain, bungalow-style property. The home has an open plan kitchen and living area, two double bedrooms and a shower room.
THE PARK
A delightful setting on the banks of the River Crouch makes this park an ideal place for retirement (50+), especially if you have a love of sailing and fishing. There are four yacht clubs within a mile of the Park and for those who prefer golf, a first class course within easy reach. Buses stop nearby going to Southend, Chelmsford and Basildon, all excellent shopping and entertainment centres. Southend has seven glorious miles of seafront with water sports, Sea Life Adventure Centre and the longest pleasure pier in the world with a railway.
THE AREA
The nearest railway station is at Rayleigh four miles away with trains to London Liverpool Street taking about forty minutes. Hullbridge has good shopping facilities including a Library, Post Office and Doctors Surgery. Close by is the antiques village of Battle bridge and the rural Essex countryside. At Leigh-on-Sea's Heritage Centre you can hear about the town's links with the Mayflower and the six little ships that helped the evacuation of the Dunkirk beaches.
HOUSE TO SELL?
Contact Quickmove for a free, no-obligation Part-Exchange valuation on this home. Enjoy a hassle-free move, with no estate agents’ fees or solicitors to pay. You even get to keep the keys to your existing property for 2 weeks after completion, so you can move out at your leisure.
Please note: manufacturer’s stock show home images have been used and may not be a 100% true representation of the property on-site. Specifications and layouts may differ, and some photos may include optional extras.
Site fees (at time of listing): £311 per month
Please note that the site fee (also known as pitch fee, or ground rent) is subject to change and reviewed annually. Ground rent can only be increased in line with the Consumer Price Index. For more information, please get in touch.
Tenure: Virtual Freehold
Virtual Freehold means that when buying a park home, you purchase the physical property outright and lease the land it sits on in perpetuity, for the entirety of the time the home is sited. These properties are not mortgageable. Please consult a solicitor for further information.
Council Tax Band: A
NOTE: The information in this property listing is correct to the best of our knowledge. We recommend any potential purchaser is aware of all details including park rules and conditions before sale completion. We also recommend consulting the Mobile Homes Act 2013 for conditions of any future sale of this property.
- Property ID: 2793
Shortlisted Properties
By clicking on the ‘Add To Shortlist’ button you can make a temporary shortlist which you can view below or by clicking here
Contact Quickmove Properties
Address
Quickmove Properties Ltd
11 Interface Business Park
Bincknoll Lane
Royal Wootton Bassett
Wiltshire, SN4 8SY
Call: 01793 840917
Email: info@quickmoveproperties.co.uk
Hours: Monday to Friday 9am to 5:30pm




