Much Wenlock, Shropshire
Viewing by Appointment only
Property Summary
- Last Modified - February 1, 2026
Features
Property Features
- Pet friendly
- Residential development
- Brand new home
- Countryside location
- Close to nearby amenities
- Gated and secure community
- Part-Exchange available for price certainty
- Modern fitted kitchen and bathrooms
- Over 45s
- Parking for two cars
Rooms
Request More Details or Viewing
- Make Enquiry
Make Enquiry
Please complete the form below and a member of staff will be in touch shortly.
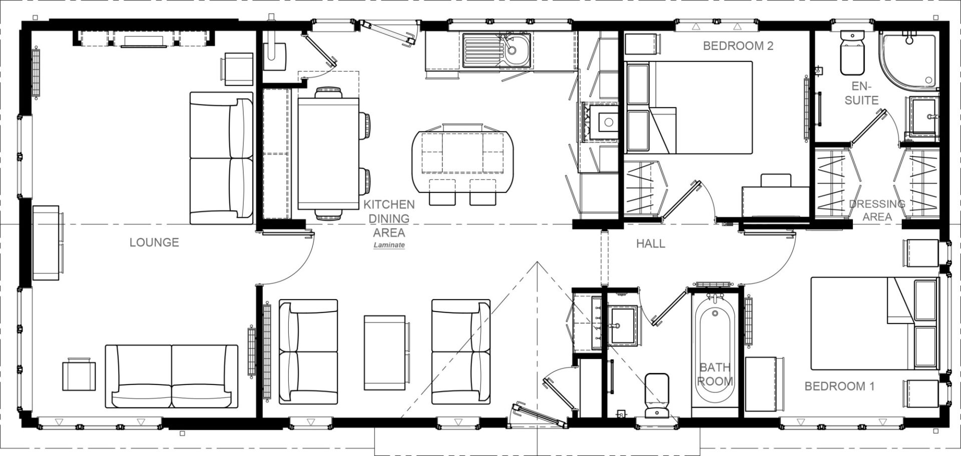
- Floorplan
- Add To Shortlist
- Send To Friend
Send To Friend
Send details of Much Wenlock, Shropshire to a friend by completing the information below.
Detailed Description
The Full Details
THE HOME
This brand new, modern furnished Omar Vision (44'x20') park home is perfect for those looking for a detached, easy to maintain, bungalow-style property. The home features private parking, an open plan kitchen and dining area with integrated appliances and island. The living space enjoys large windows and electric fireplace. The home has a double master bedroom with a dressing area and en suite, there is a second double bedroom and a bathroom. The garden area is neat and easy to maintain.
THE PARK
This fully residential pet-friendly development is exclusive for the over 45s. The park is private and gated to offer safe and secure living. The park home lifestyle provides community living for like-minded people. The park is landscaped and private, to offer safe and secure living. Built in a countryside location, the park offers their residents the opportunity for an active lifestyle that is also suitable for pets.
- 1 mile from the market town of Much Wenlock
- 7 miles from the town of Telford.
- Nearest medical centre is in Much Wenlock
- Closest supermarkets are in Telford (Morrisons, ASDA, Lidl and Aldi
- Gated community with CCTV
- Wi-fi is available with all usual providers plus Sky satellite dishes are allowed.
- Gas is piped through, underground, not bottles. Gas and electricity metred & billed every quarter.
THE AREA
Perched on a peak in the famous Shropshire hills, this exquisite hillside development is only five minutes from the idyllic market town of Much Wenlock. With a population hovering around 3,000, Much Wenlock offers a traditional village feel with all the amenities you would expect to find in a town, all housed in historical Medieaval, Georgian and Victorian buildings.
HOUSE TO SELL?
Contact Quickmove for a free, no-obligation Part-Exchange valuation on this home. Enjoy a hassle-free move, with no estate agents’ fees or solicitors to pay. You even get to keep the keys to your existing property for 2 weeks after completion, so you can move out at your leisure.
Site fees (at time of listing): £238.38 per month
Please note that the site fee (also known as pitch fee, or ground rent) is subject to change and reviewed annually. Ground rent can only be increased in line with the Consumer Price Index. For more information, please get in touch.
Tenure: Virtual Freehold
Virtual Freehold means that when buying a park home, you purchase the physical property outright and lease the land it sits on in perpetuity, for the entirety of the time the home is sited. These properties are not mortgageable. Please consult a solicitor for further information.
Council Tax Band: A
NOTE: The information in this property listing is correct to the best of our knowledge. We recommend any potential purchaser is aware of all details including park rules and conditions before sale completion. We also recommend consulting the Mobile Homes Act 2013 for conditions of any future sale of this property.
- Property ID: 4436
Shortlisted Properties
By clicking on the ‘Add To Shortlist’ button you can make a temporary shortlist which you can view below or by clicking here
Contact Quickmove Properties
Address
Quickmove Properties Ltd
11 Interface Business Park
Bincknoll Lane
Royal Wootton Bassett
Wiltshire, SN4 8SY
Call: 01793 840917
Email: info@quickmoveproperties.co.uk
Hours: Monday to Friday 9am to 5:30pm




