Northampton, Northamptonshire
Viewing by Appointment only
Property Summary
- Last Modified - December 17, 2025
Features
Property Features
- Part Exchange available
- Fully furnished
- Pet friendly
- Residential development
- Two double bedrooms
- Over 50s
- Brand new home
- Heated outdoor swimming pool
- Private
- gated development
- Access to leisure facilities
Rooms
Request More Details or Viewing
- Make Enquiry
Make Enquiry
Please complete the form below and a member of staff will be in touch shortly.
- Floorplan
- View Brochure
- Add To Shortlist
- Send To Friend
Send To Friend
Send details of Northampton, Northamptonshire to a friend by completing the information below.
Detailed Description
The Full Details
THE HOME
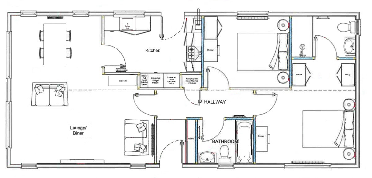
This brand-new, modern-furnished Harbur H4 (40'x20') luxury park home is perfect for those looking for a detached, easy-to-maintain, bungalow-style property. The home has a spacious kitchen with integrated appliances, dining area and comfortable living room. The master bedroom has an en suite and dressing area, there is a second double bedrooms and bathroom. Each home has a driveway for 2 cars.
THE PARK
This brand new residential development is an extension of a popular leisure development with 115 acres of woodland with stunning views, surrounded by tranquil lakes and countryside walks. With a handful of show homes available to view now, the phase will be just 25 homes in total. The development is gated for extra privacy and it is exclusive for those over 50 and their pets.
The residents will benefit from being able to use the fantastic facilities at the leisure park, which include a bar, a café, a convenience shop, a heated outdoor pool, restaurant, fishing lakes, tennis courts, and a bowling green, hairdressers and launderette.
THE AREA
The development is a short 14 minute drive from Northampton town centre, providing easy access to shops, restaurants, and entertainment. Major road connections, including the A43 and M1 motorway, are nearby but a bus stop located outside the park, making travel to cities like London, Birmingham, and Milton Keynes quick and convenient.
Aldi - 2.8 miles
Doctors surgery - 5 miles
Northampton General - 7 miles
Train station - 8 miles
HOUSE TO SELL?
Contact Quickmove for a free, no-obligation Part-Exchange valuation on this home. Enjoy a hassle-free move, with no estate agents’ fees or solicitors to pay. You even get to keep the keys to your existing property for 2 weeks after completion, so you can move out at your leisure.
Please note: manufacturer’s stock show home images have been used and may not be a 100% true representation of the property on-site. Specifications and layouts may differ, and some photos may include optional extras.
Site fees (at time of listing): £264 per month
Please note that the site fee (also known as pitch fee, or ground rent) is subject to change and reviewed annually. Ground rent can only be increased in line with the Consumer Price Index. For more information, please get in touch.
Tenure: Virtual Freehold
Virtual Freehold means that when buying a park home, you purchase the physical property outright and lease the land it sits on in perpetuity, for the entirety of the time the home is sited. These properties are not mortgageable, if you are uncertain or would like further advice, please consult a solicitor.
Council Tax Band: A
NOTE: The information in this property listing is correct to the best of our knowledge. We recommend any potential purchaser is aware of all details including park rules and conditions before sale completion. We also recommend consulting the Mobile Homes Act 2013 for conditions of any future sale of this property.
- Property ID: 4301
Shortlisted Properties
By clicking on the ‘Add To Shortlist’ button you can make a temporary shortlist which you can view below or by clicking here
Contact Quickmove Properties
Address
Quickmove Properties Ltd
11 Interface Business Park
Bincknoll Lane
Royal Wootton Bassett
Wiltshire, SN4 8SY
Call: 01793 840917
Email: info@quickmoveproperties.co.uk
Hours: Monday to Friday 9am to 5:30pm




