Okehampton, Devon
Viewing by Appointment only
Property Summary
- Last Modified - January 20, 2026
Features
Property Features
- Part Exchange available
- Fully furnished
- Community living
- Over 50s
- Brand new home
- Garden space
- Long-established park
- Rural Location
- Shops and amenities nearby
- Residential park
Rooms
Request More Details or Viewing
- Make Enquiry
Make Enquiry
Please complete the form below and a member of staff will be in touch shortly.
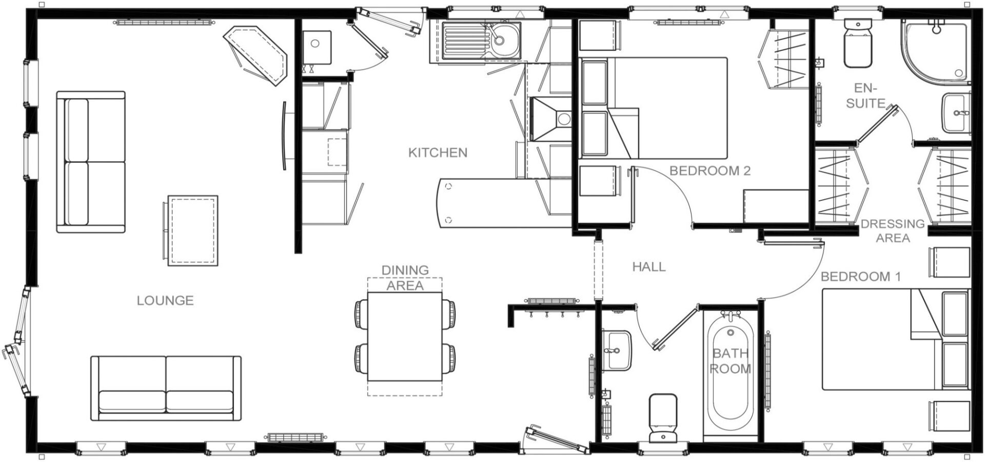
- Floorplan
- View Brochure
- Add To Shortlist
- Send To Friend
Send To Friend
Send details of Okehampton, Devon to a friend by completing the information below.
Detailed Description
The Full Details
THE HOME
This brand new, fully furnished modern Omar Newmarket (40'x20') park home, perfect for those looking for a detached, easy to maintain, bungalow-style property. This home features the latest construction techniques, design, and guarantees. Modern full furnishings and integrated appliances included. The accommodation will comprise a central kitchen-diner, lounge, two bedrooms and a bathroom. The home is located on a large corner plot, decking and parking.
THE PARK
This home is located on a well-established residential park for the over 50s. The park lies close to the heart of Okehampton and is conveniently situated for local shops and amenities as well as the local Waitrose and Lidl supermarkets. At this park, residents enjoy a safe community lifestyle with like minded semi/retired people.
THE AREA
Okehampton lies in the heart of rural Devon, on the shoulders of Dartmoor National Park, renowned for its beautiful walks, ponies and stunning scenery. The park itself is conveniently located within walking distance to the town centre with all its amenities and facilities and great transport links.
Please note: manufacturer’s stock show home images have been used and may not be a 100% true representation of the property on-site. Specifications and layouts may differ, and some photos may include optional extras.
HOUSE TO SELL?
Contact Quickmove for a free, no-obligation Part-Exchange valuation on this home. Enjoy a hassle-free move, with no estate agents’ fees or solicitors to pay. You even get to keep the keys to your existing property for 2 weeks after completion, so you can move out at your leisure.
Site fees (as known at time of listing): £200 per month inc water and sewerage
Please note that the site fee (also known as pitch fee, or ground rent) is subject to change and reviewed annually. Ground rent can only be increased in line with the Consumer Price Index. For more information, please get in touch.
Tenure: Virtual Freehold
Virtual Freehold means that when buying a park home, you purchase the physical property outright and lease the land it sits on in perpetuity, for the entirety of the time the home is sited. These properties are not mortgageable. Please consult a solicitor for further information.
Council Tax Band: A
NOTE: The information in this property listing is correct to the best of our knowledge. We recommend any potential purchaser is aware of all details including park rules and conditions before sale completion. We also recommend consulting the Mobile Homes Act 2013 for conditions of any future sale of this property.
- Property ID: 4410
Shortlisted Properties
By clicking on the ‘Add To Shortlist’ button you can make a temporary shortlist which you can view below or by clicking here
Contact Quickmove Properties
Address
Quickmove Properties Ltd
11 Interface Business Park
Bincknoll Lane
Royal Wootton Bassett
Wiltshire, SN4 8SY
Call: 01793 840917
Email: info@quickmoveproperties.co.uk
Hours: Monday to Friday 9am to 5:30pm




