Poole, Dorset
Viewing by Appointment only
Property Summary
- Last Modified - February 25, 2026
Features
Property Features
- Part Exchange available
- Residential development
- Two double bedrooms
- Pets welcome
- Private
- gated development
- Show home condition
- Pre-owned park home
- Residents' coffee lounge
- Integrated appliances
- Over 45s
Rooms
Request More Details or Viewing
- Make Enquiry
Make Enquiry
Please complete the form below and a member of staff will be in touch shortly.
- Floorplan
- View Brochure
- Virtual Tour
- Add To Shortlist
- Send To Friend
Send To Friend
Send details of Poole, Dorset to a friend by completing the information below.
Detailed Description
The Full Details
THE HOME
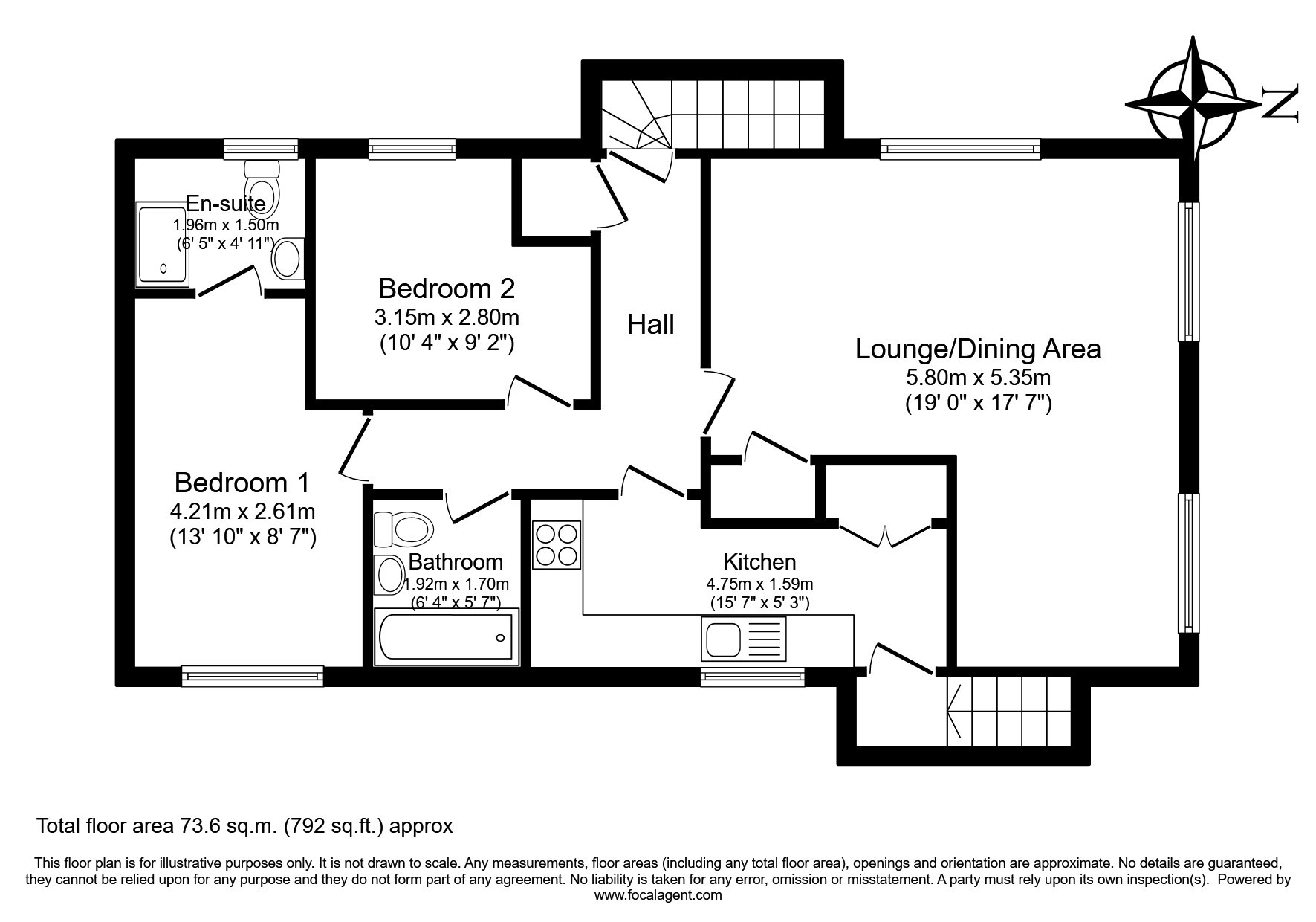
This pre owned, modern Prestige Affinity (40'x20') park home is perfect for those looking for a detached, easy to maintain, bungalow style property. The home is in excellent condition, it features a modern kitchen and lounge/diner area. It has two double bedrooms and the master bedroom has an en-suite shower room. The home has a garden with a shed and a private driveway.
THE PARK
This home is located on a private, gated development of detached luxury park homes for the over 45’s, located in Beacon Hill close to Poole Harbour, Dorset. Set is set within a beautiful, landscaped, forest setting with elevated views of the surrounding countryside. Each home enjoys modern design, ample parking, and a safe, welcoming community of like-minded residents. There is a coffee lounge on site and residents has fishing rights to the lakes on the park.
The development is incredibly convenient due to easy access into neighbouring towns; Poole, Bournemouth, and Salisbury, as well as surrounding country parks including the New Forest and Hartland Moor National Nature Reserve which offer wonderful walking trails.
THE AREA
The developments location is secluded and peaceful, surrounded by forest, a haven for nature and wildlife. A convenient bus stop is located directly outside and if you are feeling adventurous, why not hop on the Ferry to Sandbanks, close access to the Jurassic Coast and the main ferry terminal to Jersey.
Bus Stop - Development Entrance
Shop - 1 mile
Post Office - 1 mile
GP Surgery - 1 mile
Supermarket - 2 miles
Train Station 2 miles
Poole - 4 miles
Sandbanks - 8 miles
Bournemouth - 10 miles
HOUSE TO SELL?
Contact Quickmove for a free, no-obligation Part-Exchange valuation on this home. Enjoy a hassle-free move, with no estate agents’ fees or solicitors to pay. You even get to keep the keys to your existing property for 2 weeks after completion, so you can move out at your leisure.
Site fees (at time of listing): £306 per month
Please note that the site fee (also known as pitch fee, or ground rent) is subject to change and reviewed annually. Ground rent can only be increased in line with the Consumer Price Index. For more information, please get in touch.
Tenure: Virtual Freehold
Virtual Freehold means that when buying a park home, you purchase the physical property outright and lease the land it sits on in perpetuity, for the entirety of the time the home is sited. These properties are not mortgageable. Please consult a solicitor for further information.
Council Tax Band: A
NOTE: The information in this property listing is correct to the best of our knowledge. We recommend any potential purchaser is aware of all details including park rules and conditions before sale completion. We also recommend consulting the Mobile Homes Act 2013 for conditions of any future sale of this property.
- Property ID: 4449
Shortlisted Properties
By clicking on the ‘Add To Shortlist’ button you can make a temporary shortlist which you can view below or by clicking here
Contact Quickmove Properties
Address
Quickmove Properties Ltd
11 Interface Business Park
Bincknoll Lane
Royal Wootton Bassett
Wiltshire, SN4 8SY
Call: 01793 840917
Email: info@quickmoveproperties.co.uk
Hours: Monday to Friday 9am to 5:30pm




