Preston, Lancashire
Viewing by Appointment only
Property Summary
- Last Modified - November 27, 2025
Features
Property Features
- Part Exchange available
- Pet friendly
- Residential development
- Two double bedrooms
- Over 50s
- Garden space
- Private
- gated development
- Pre-owned park home
- Fishing lake on site
- Decking
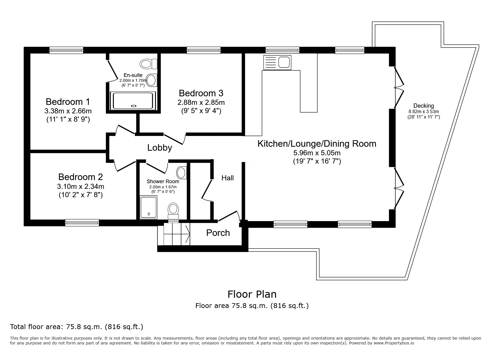
Rooms
Request More Details or Viewing
- Make Enquiry
Make Enquiry
Please complete the form below and a member of staff will be in touch shortly.
- Floorplan
- View Brochure
- Virtual Tour
- Add To Shortlist
- Send To Friend
Send To Friend
Send details of Preston, Lancashire to a friend by completing the information below.
Detailed Description
The Full Details
THE HOME
This pre-owned, modern Cambrian Horizon (40'x20') park home is perfect for those looking for a detached, easy-to-maintain, bungalow-style property. The home has an open plan kitchen, living and dining space, with integrated appliances and large windows and double doors leading to the decking. The home has two double bedrooms and a third single bedrooms, an en suite and a bathroom. The home has a wraparound garden with a large decking, shed and parking for 2 cars.
THE PARK
This secluded, private development development is located on the site of a Fishery, providing residents with well-stocked private fishing lakes. The homes are exclusive for those over 50s and their pets, with a gated entrance. The park home lifestyle provides community living for like-minded people. The park is landscaped and private, to offer safe and secure living. Built in a countryside location, the park offers their residents the opportunity for an active lifestyle that is also suitable for pets.
The lodges have been built in line with flood risk assessment planning, 10.2 meters above sea level, along with the flood gate on the river and the elevated height of the lodges means risk of the homes flooding is near impossible. All lodges set back from the lake are built on 8-inch steel reinforced concrete, and all lodges by the lakeside are on 10-inch steel reinforced concrete.
THE AREA
Located in the small village of St Michael's on Wyre, residents are within waking distance of bus stops, petrol station and a pub. The homes are located 45 minutes away from Manchester and the Lake District, easily accessible along M6. The park is just 30 minutes by bus or car to Preston, Lancaster or Blackpool and ten minutes by bus or car to Garstang.
Local amenities
Bus stop: 0.2 miles
Pub: 0.5 miles
Train station: 8.4 miles
Sainsburys: 3.9
HOUSE TO SELL?
Contact Quickmove for a free, no-obligation Part-Exchange valuation on this home. Enjoy a hassle-free move, with no estate agents’ fees or solicitors to pay. You even get to keep the keys to your existing property for 2 weeks after completion, so you can move out at your leisure.
Site fees (at time of listing): £318 per month
Please note that the site fee (also known as pitch fee, or ground rent) is subject to change and reviewed annually. Ground rent can only be increased in line with the Consumer Price Index. For more information, please get in touch.
Tenure: Virtual Freehold
Virtual Freehold means that when buying a park home, you purchase the physical property outright and lease the land it sits on in perpetuity, for the entirety of the time the home is sited. These properties are not mortgageable, if you are uncertain or would like further advice, please consult a solicitor.
Council Tax Band: A
NOTE: The information in this property listing is correct to the best of our knowledge. We recommend any potential purchaser is aware of all details including park rules and conditions before sale completion. We also recommend consulting the Mobile Homes Act 2013 for conditions of any future sale of this property.
SMGPARKREF-1274
- Property ID: 4316
Shortlisted Properties
By clicking on the ‘Add To Shortlist’ button you can make a temporary shortlist which you can view below or by clicking here
Contact Quickmove Properties
Address
Quickmove Properties Ltd
11 Interface Business Park
Bincknoll Lane
Royal Wootton Bassett
Wiltshire, SN4 8SY
Call: 01793 840917
Email: info@quickmoveproperties.co.uk
Hours: Monday to Friday 9am to 5:30pm




