Southampton, Hampshire
£164,000
For Sale
Viewing by Appointment only
Property Summary
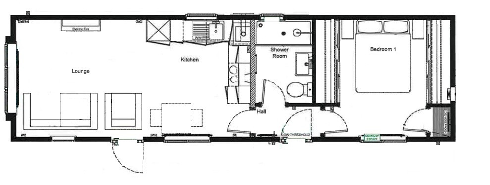
BRAND NEW Park Home (40'x10') | FULLY-FURNISHED | Luxury Detached Home | Attractive Residential Park Set Within New Forest National Park | Like Minded Community | Excellent Transport Links | Ample Parking | Sought-After Location | Over 50's | Safe And Secure Park | Part Exchange Available
- Last Modified - November 27, 2025
Features
Property Features
- Part Exchange available
- Community living
- Over 50s
- Exceptionally high specification
- Brand new home
- Fully fitted kitchen
- Retirement property
- One double bedroom
- Semi-rural location
- Brand new design
Rooms
1 Bedrooms
1 Bathrooms
Request More Details or Viewing
- Make Enquiry
Make Enquiry
Please complete the form below and a member of staff will be in touch shortly.
- Floorplan
- View Brochure
- Add To Shortlist
- Send To Friend
Send To Friend
Send details of Southampton, Hampshire to a friend by completing the information below.
Detailed Description
The Full Details
- Property ID: 2928
Shortlisted Properties
By clicking on the ‘Add To Shortlist’ button you can make a temporary shortlist which you can view below or by clicking here
Shortlisted properties will appear here
Contact Quickmove Properties
Address
Quickmove Properties Ltd
11 Interface Business Park
Bincknoll Lane
Royal Wootton Bassett
Wiltshire, SN4 8SY
Call: 01793 840917
Email: info@quickmoveproperties.co.uk
Hours: Monday to Friday 9am to 5:30pm




