Swanage, Dorset
Viewing by Appointment only
Property Summary
- Last Modified - April 11, 2026
Features
Property Features
- Fully furnished
- Community living
- Two bedrooms
- Up to 100% part exchange available
- Over 50s
- Exceptionally high specification
- Brand new home
- Modern design
- Available to view
- Residential park
Rooms
Request More Details or Viewing
- Make Enquiry
Make Enquiry
Please complete the form below and a member of staff will be in touch shortly.
- Floorplan
- View Brochure
- Virtual Tour
- Add To Shortlist
- Send To Friend
Send To Friend
Send details of Swanage, Dorset to a friend by completing the information below.
Detailed Description
The Full Details
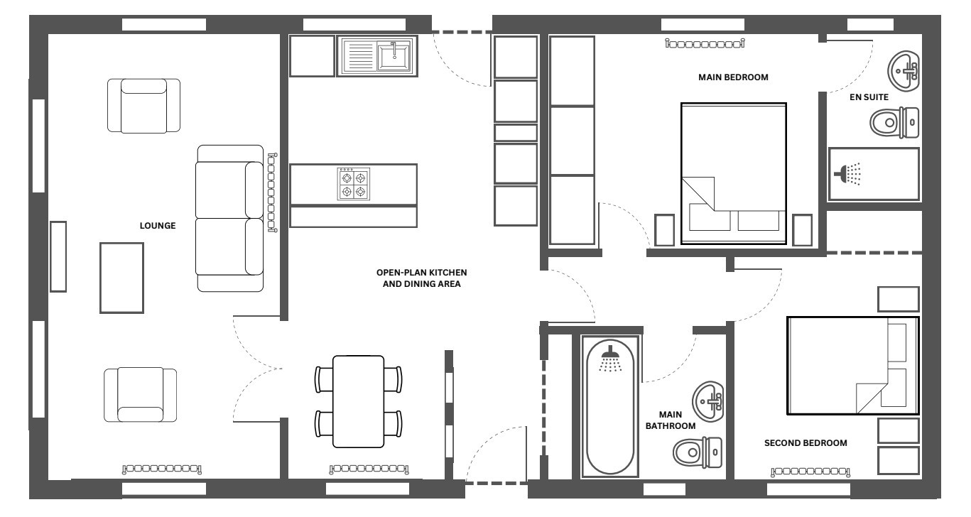
THE HOME
This brand new, modern-furnished Manor Olney (42'x22') luxury park home is perfect for those looking for a detached, easy to maintain, bungalow-style property. The home features a fully fitted kitchen with integrated appliances, a comfortable living area with modern furniture, a master bedroom with an en suite and walk in wardrobe, and a second double bedroom and bathroom. The home has a car bay and garden shed.
THE PARK
This home is located on a popular development of around 100 residential park homes. The park is in a 14 acre setting among the Purbeck Hills with outstanding views of the beautiful Dorset countryside yet only 15 minutes walk to Swanage Town Centre and Beach. This residential park has been developed for the over 50s, and the park is pet friendly (1 per home). There is a residents association at this park, and residents also have access to the club house. All homes at this stunning park are fully furnished and have tiled roofs, mains gas central heating and double glazing.
THE AREA
Swanage is a quintessential small seaside town on the Isle of Purbeck which is part of the Jurassic Coast, England′s first Natural World Heritage Site and adjacent to the golden sands of Studland Beach and Shell Bay, part of a larger National Trust Estate which also includes Corfe Castle and Kingston Lacy House.
While Swanage has good local shops, doctor, dentist, etc., it is a short hop by chain ferry to Sandbanks (known as one of the most expensive property locations in the world) and well known Poole and Bournemouth (famous for its shopping centre, theatres and beaches) and Southampton. A short distance further away is the unrivalled timeless beauty of the New Forest with its quaint villages and famous ponies.
HOUSE TO SELL?
GET UP TO 100% MARKET VALUE WITH PART EXCHANGE
Contact Quickmove for a free, no-obligation Part-Exchange valuation. At this development, you can receive up to 100% market value* for your home.
Enjoy a hassle-free move, with no estate agents’ fees or solicitors to pay. You even get to keep the keys to your existing property for 2 weeks after completion, so you can move out at your leisure.
*Market value of your home is likely selling price based on independent estate agents’ appraisals and part exchange assessment, subject to survey.
Site fees (at time of listing): £276 per month
Please note that the site fee (also known as pitch fee, or ground rent) is subject to change and reviewed annually. Ground rent can only be increased in line with the Consumer Price Index. For more information, please get in touch.
Tenure: Virtual Freehold
Virtual Freehold means that when buying a park home, you purchase the physical property outright and lease the land it sits on in perpetuity, for the entirety of the time the home is sited. These properties are not mortgageable. Please consult a solicitor for further information.
Council Tax Band: A or B (Plot dependant)
NOTE: The information in this property listing is correct to the best of our knowledge. We recommend any potential purchaser is aware of all details including park rules and conditions before sale completion. We also recommend consulting the Mobile Homes Act 2013 for conditions of any future sale of this property.
Stock images: the images are for illustration purposes and may vary from the actual bungalow on-site. Specifications and layouts may differ, and some photos/virtual tour may include optional extras.
- Property ID: 4384
Shortlisted Properties
By clicking on the ‘Add To Shortlist’ button you can make a temporary shortlist which you can view below or by clicking here
Contact Quickmove Properties
Address
Quickmove Properties Ltd
11 Interface Business Park
Bincknoll Lane
Royal Wootton Bassett
Wiltshire, SN4 8SY
Call: 01793 840917
Email: info@quickmoveproperties.co.uk
Hours: Monday to Friday 9am to 5:30pm




