Diss, Norfolk
Viewing by Appointment only
Property Summary
- Last Modified - November 27, 2025
Features
Property Features
- Part Exchange available
- Community living
- Garden shed
- Over 50s
- Garden space
- Modern design
- Well maintained home
- Pre-owned park home
- Bus stop nearby
Rooms
Request More Details or Viewing
- Make Enquiry
Make Enquiry
Please complete the form below and a member of staff will be in touch shortly.
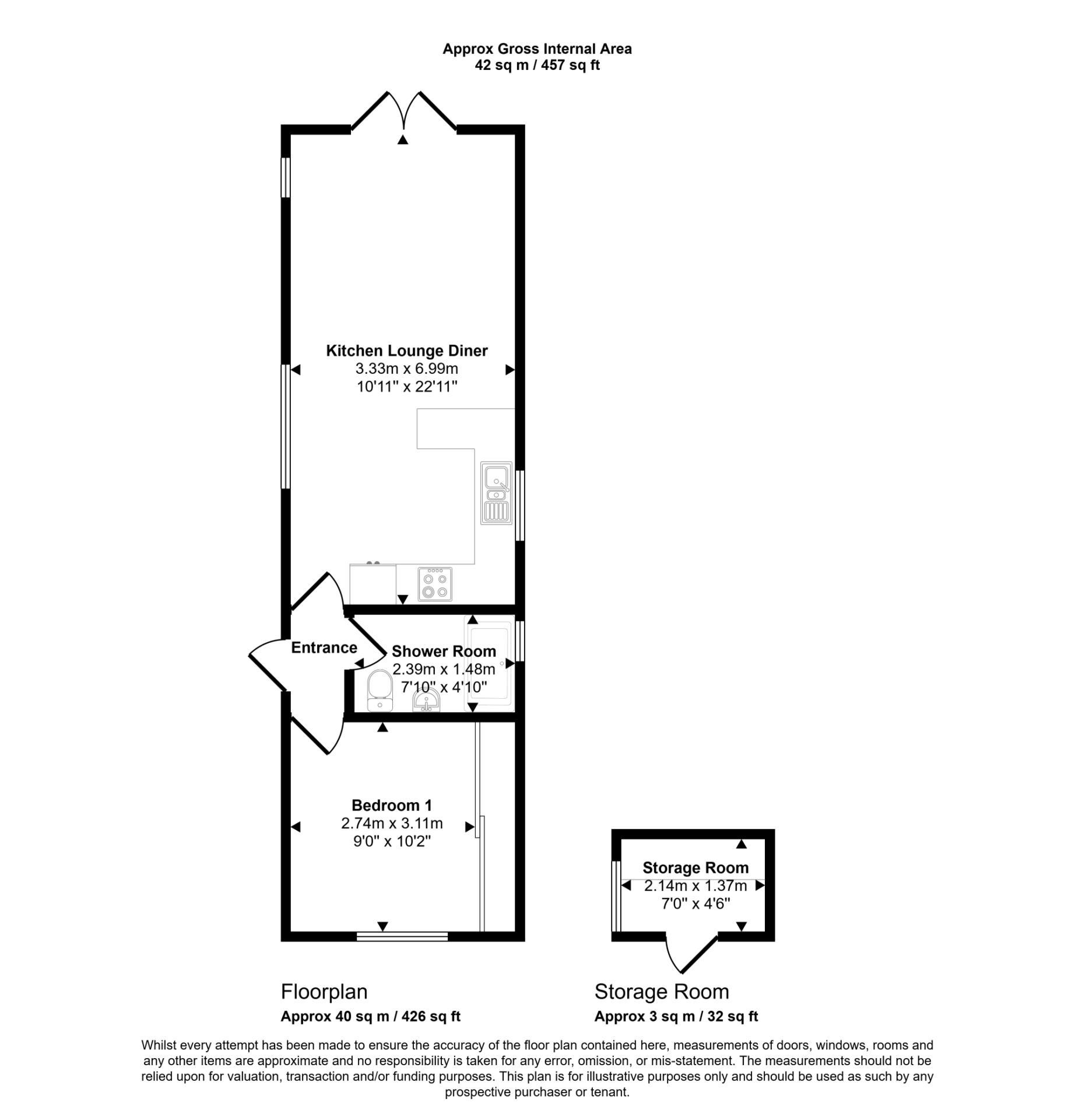
- Floorplan
- View Brochure
- Virtual Tour
- Add To Shortlist
- Send To Friend
Send To Friend
Send details of Diss, Norfolk to a friend by completing the information below.
Detailed Description
The Full Details
THE HOME
This pre-owned, well maintained Prestige Accolade (40'x12') park home is perfect for those looking for a detached, easy to maintain, bungalow-style property. The home has an open plan kitchen, living and dining area, with French doors leading out to the garden. The home has a double bedroom with a fitted wardrobe and a shower room.
The home is only 3 years old (2022) with 7 years warranty left. It is also available fully furnished.
The garden has a good size shed which has been insulated and ply lined. The shed also has water and electricity making an idea place for either an outdoor kitchen or utility room. The garden backs onto the River Waveney ( this has a good defence, so no fear of any flooding to the garden or property) making it a haven for wild life, often seeing deers, swans ducks squirrels and all kinds of different types of birds.
THE PARK
Waveney Park was founded around 30 years ago and is nestled next to the River Waveney. This peaceful and relaxed park overlooks an 18 hole golf course. The park is exclusive for the over 50s and has 24 hour surveillance to create a safe and secure environment. The park has a regular bus service and there is a convenience store 150m from the park.
Garages also available to rent (subject to availability).
THE AREA
Diss is situated in South Norfolk on the Norfolk Suffolk border, twenty miles from Norwich, twenty two miles from Ipswich and thirty miles from the coast. South Norfolk is an area of untouched beauty with may countryside villages and attractive towns providing a wealth of history.
HOUSE TO SELL?
Contact Quickmove for a free, no-obligation Part-Exchange valuation on this home. Enjoy a hassle-free move, with no estate agents’ fees or solicitors to pay. You even get to keep the keys to your existing property for 2 weeks after completion, so you can move out at your leisure.
Site fees (at time of listing): £321 per month
Please note that the site fee (also known as pitch fee, or ground rent) is subject to change and reviewed annually. Ground rent can only be increased in line with the Consumer Price Index. For more information, please get in touch.
Tenure: Virtual Freehold
Virtual Freehold means that when buying a park home, you purchase the physical property outright and lease the land it sits on in perpetuity, for the entirety of the time the home is sited. These properties are not mortgageable. Please consult a solicitor for further information.
Council Tax Band: A
NOTE: The information in this property listing is correct to the best of our knowledge. We recommend any potential purchaser is aware of all details including park rules and conditions before sale completion. We also recommend consulting the Mobile Homes Act 2013 for conditions of any future sale of this property.
SMGPARKREF-7315
- Property ID: 4223
Shortlisted Properties
By clicking on the ‘Add To Shortlist’ button you can make a temporary shortlist which you can view below or by clicking here
Contact Quickmove Properties
Address
Quickmove Properties Ltd
11 Interface Business Park
Bincknoll Lane
Royal Wootton Bassett
Wiltshire, SN4 8SY
Call: 01793 840917
Email: info@quickmoveproperties.co.uk
Hours: Monday to Friday 9am to 5:30pm




