Gunthorpe, Nottinghamshire
Viewing by Appointment only
Property Summary
- Last Modified - April 20, 2026
Features
Property Features
- Community living
- Two bedrooms
- Garden space
- Long-established park
- Stunning location
- Residential park home
- Close to nearby amenities
- Property is vacant
- Unfurnished
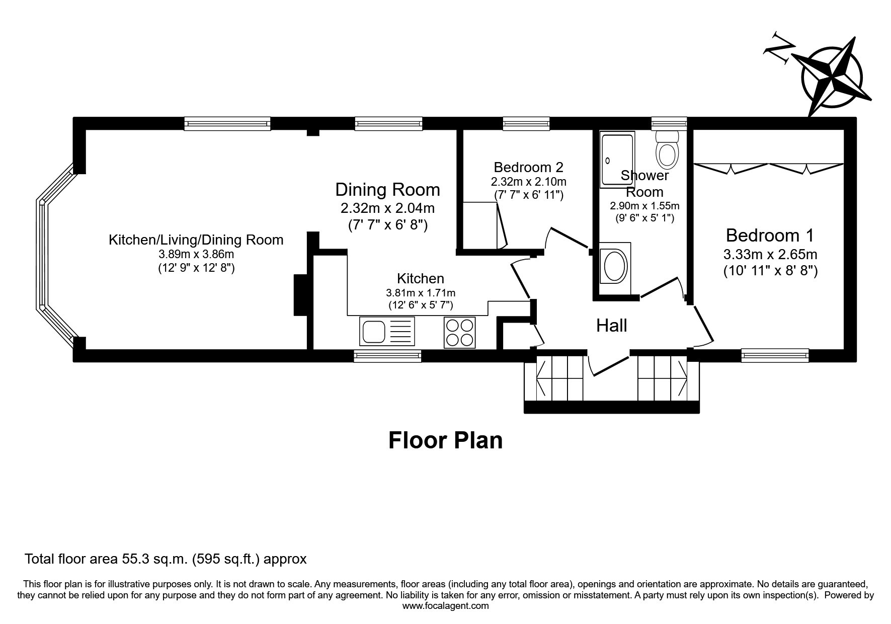
Rooms
Request More Details or Viewing
- Make Enquiry
Make Enquiry
Please complete the form below and a member of staff will be in touch shortly.
- Floorplan
- View Brochure
- Virtual Tour
- Add To Shortlist
- Send To Friend
Send To Friend
Send details of Gunthorpe, Nottinghamshire to a friend by completing the information below.
Detailed Description
The Full Details
THE HOME
This pre-owned, vacant Homeseeker park home (43'x13') is perfect for those looking for a detached, easy to maintain, bungalow-style property. The home features two bedrooms, a kitchen, a large lounge and dining area, one bathroom. The garden surrounds the home with views of the park.
THE PARK
This home is located on a very sought after residential development of just over 19 homes, exclusive for the over 45s. The park is close to the banks of the River Trent in Gunthorpe. Pets are welcome at the park, but they are limited to one cat and one dog per home.
The park home lifestyle provides community living for like-minded people. The park is landscaped and private, to offer safe and secure living. Built in a countryside location, the park offers their residents the opportunity for an active lifestyle that is also suitable for pets.
THE AREA
The village of Gunthorpe is a picturesque place with a thriving local community with award winning restaurants and popular waterside pubs. Residents can find facilities in the nearby market town of Bingham and in the adjacent village of Lowdham, where there is a train station with links to Nottingham and Newark. The nearest medical center is in East Bridgeford and the nearest large supermarket is Morrisons about 4 miles away. The village is ideally placed close to the A6097 which provides links to the A46 and A52, A1 and M1.
Local amenities
Bus stop: Outside development
Train station: 1.6 miles
Medical centre: 1.8 miles
Morrisond: 4 miles
Tesco supermarket: 6.6 miles
HOUSE TO SELL?
Contact Quickmove for a free, no-obligation Part-Exchange valuation on this home. Enjoy a hassle-free move, with no estate agents’ fees or solicitors to pay. You even get to keep the keys to your existing property for 2 weeks after completion, so you can move out at your leisure.
Site fees (at time of listing): £229.52 per month
Please note that the site fee (also known as pitch fee, or ground rent) is subject to change and reviewed annually. Ground rent can only be increased in line with the Consumer Price Index. For more information, please get in touch.
Tenure: Virtual Freehold
Virtual Freehold means that when buying a park home, you purchase the physical property outright and lease the land it sits on in perpetuity, for the entirety of the time the home is sited. These properties are not mortgageable, if you are uncertain or would like further advice, please consult a solicitor.
Council Tax Band: A
NOTE: The information in this property listing is correct to the best of our knowledge. We recommend any potential purchaser is aware of all details including park rules and conditions before sale completion. We also recommend consulting the Mobile Homes Act 2013 for conditions of any future sale of this property.
- Property ID: 4477
Shortlisted Properties
By clicking on the ‘Add To Shortlist’ button you can make a temporary shortlist which you can view below or by clicking here
Contact Quickmove Properties
Address
Quickmove Properties Ltd
11 Interface Business Park
Bincknoll Lane
Royal Wootton Bassett
Wiltshire, SN4 8SY
Call: 01793 840917
Email: info@quickmoveproperties.co.uk
Hours: Monday to Friday 9am to 5:30pm




