Northallerton, North Yorkshire
Viewing by Appointment only
Property Summary
- Last Modified - May 26, 2026
Features
Property Features
- Part Exchange available
- Fully furnished
- Community living
- Pet friendly
- Residential development
- Exceptionally high specification
- Brand new home
- Rural Location
- Over 45s
- Parking for two cars
Rooms
Request More Details or Viewing
- Make Enquiry
Make Enquiry
Please complete the form below and a member of staff will be in touch shortly.
- Floorplan
- View Brochure
- Add To Shortlist
- Send To Friend
Send To Friend
Send details of Northallerton, North Yorkshire to a friend by completing the information below.
Detailed Description
The Full Details
THE HOME
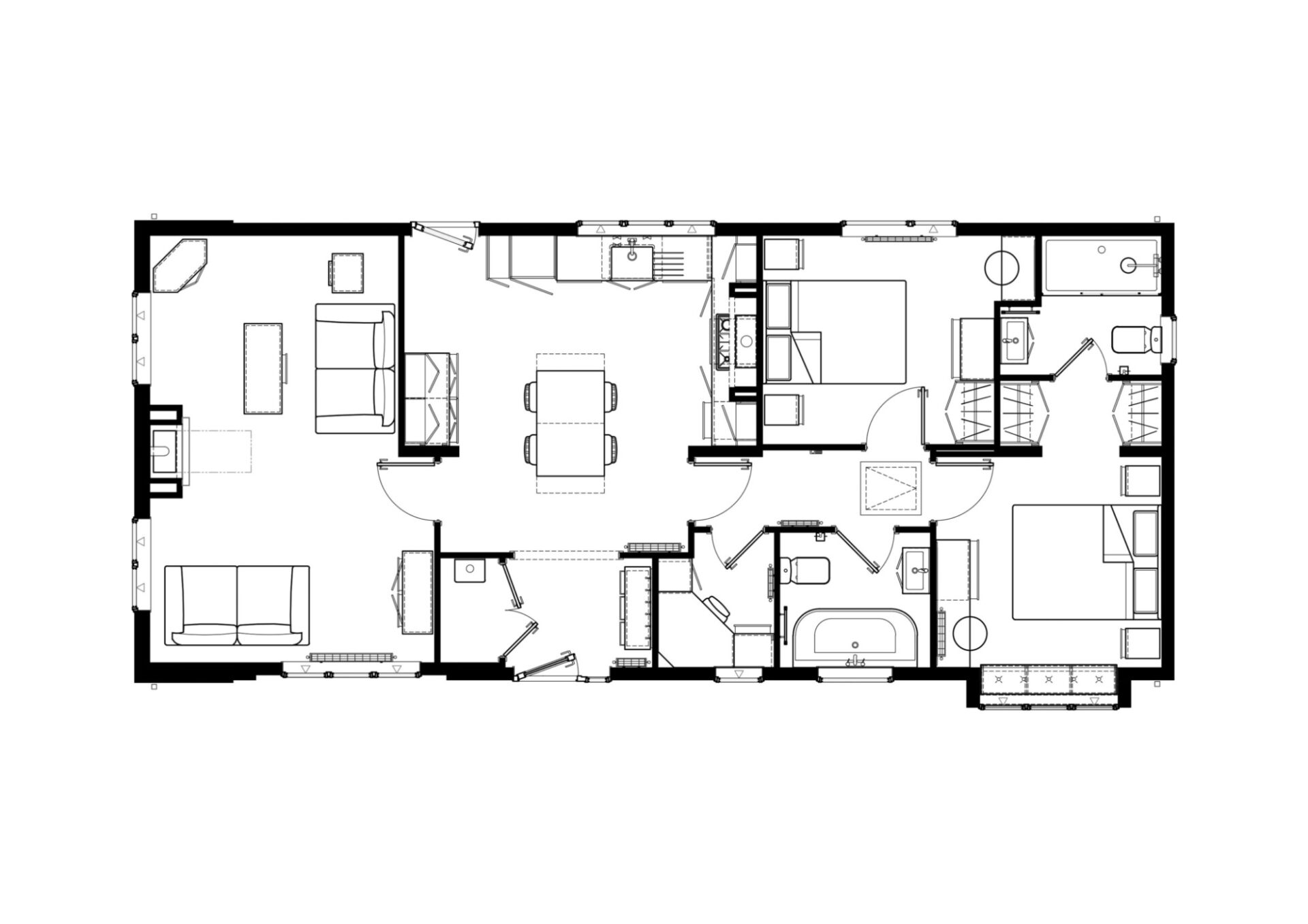
This brand-new, modern-furnished Omar Breckland (45'x20') luxury park home is perfect for those looking for a detached, easy-to-maintain, bungalow-style property. The home has a modern and spacious kitchen, dining area, a separate living room and a study. The master bedroom has an en suite and dressing area, there is a second double bedroom and bathroom.
THE PARK
This brand new residential development will consist of 24 homes. Its is exclusive for those over 45 and is pet friendly. Each home is built to a high specification, has a landscaped exterior and parking for 2 cars.
The park home lifestyle provides community living for like-minded people. The park is landscaped and private, to offer safe and secure living. Situated in a countryside location, the park offers their residents the opportunity for an active lifestyle that is also suitable for pets.
THE AREA
The development is set in a stunning rural location on the edge of the Yorkshire Dales, with many countryside walkways directly from the park. Just 9 miles from the picturesque market town of Northallerton, where you can find boutique shops as well as high street shops and the closest medical centre. Richmond and Thirsk are within 13 miles of the park as alternate town centre destinations. The city of Leeds is under one hours drive away. Situated a short drive from the A1 this park has great access, North and South to the rest of the UK.
Local amenities
Co-op: 5 miles
Medical centre: 11 miles
Lidl supermarket: 11 miles
Train station: 11 miles
HOUSE TO SELL?
Contact Quickmove for a free, no-obligation Part-Exchange valuation on this home. Enjoy a hassle-free move, with no estate agents’ fees or solicitors to pay. You even get to keep the keys to your existing property for 2 weeks after completion, so you can move out at your leisure.
Please note: manufacturer’s stock show home images have been used and may not be a 100% true representation of the property on-site. Specifications and layouts may differ, and some photos may include optional extras.
Site fees (at time of listing): £250 per month
Please note that the site fee (also known as pitch fee, or ground rent) is subject to change and reviewed annually. Ground rent can only be increased in line with the Consumer Price Index. For more information, please get in touch.
Tenure: Virtual Freehold
Virtual Freehold means that when buying a park home, you purchase the physical property outright and lease the land it sits on in perpetuity, for the entirety of the time the home is sited. These properties are not mortgageable, if you are uncertain or would like further advice, please consult a solicitor.
Council Tax Band: A
NOTE: The information in this property listing is correct to the best of our knowledge. We recommend any potential purchaser is aware of all details including park rules and conditions before sale completion. We also recommend consulting the Mobile Homes Act 2013 for conditions of any future sale of this property.
- Property ID: 4476
Shortlisted Properties
By clicking on the ‘Add To Shortlist’ button you can make a temporary shortlist which you can view below or by clicking here
Contact Quickmove Properties
Address
Quickmove Properties Ltd
11 Interface Business Park
Bincknoll Lane
Royal Wootton Bassett
Wiltshire, SN4 8SY
Call: 01793 840917
Email: info@quickmoveproperties.co.uk
Hours: Monday to Friday 9am to 5:30pm




